Дизайн інтер'єру у подарунок - | Тариф | 🛠️ Технічний |
| Ціна | 💲 20$/м2 |
| Команда проекту | 👨💻 2 особи |
| Термін реалізації | ⏰ від 14 днів |
| Ви отримуєте: всю потрібну для будівельної бригади креслярську документацію. Це: планувальне рішення, плани поверхонь, оздоблення, розташування розеток, прив’язки сантехнічного обладнання. Детально ознайомитися з тарифом ви можете на сторінці “Ціни”. | |

72,9 м²
м. Харків, вул. Заливна, 4






Не залучаємо сторонніх підрядників
Від розробки дизайн-проекту до реалізації під ключ
Даємо гарантію на ремонт 36 місяців
У нас середні ціни на ринку
Дизайн-проект у подарунок при замовленні ремонту під ключ
Зручна система оплати у 4 платежі


Заповнюйте заявку, щоб отримати відповіді на всі запитання про дизайн інтер’єру від кваліфікованого фахівця.
АННА
Головний дизайнер














Велике дякую BORISSTUDIO за розроблений дизайн-проект мого таунхауса в Києві площею 78,3 м2. Робота виконана на найвищому рівні – дуже професійно, з увагою до всіх деталей та моїх побажань.
“Велике спасибі BORISSTUDIO за якісний дизайн-проект моєї квартири. Все чітко, професійно і з увагою до деталей. Дуже задоволений результатом – вийшло стильно та зручно. Рекомендую!”
“Враження супер позитивні, з першого дня нашої з вами співпраці ми були на одній хвилі. Завжди швидко отримували зворотний зв’язок, все класно, ми дуже задоволені нашою співпрацею.”
“Ми раді, тому що вийшло реалізувати дуже багато наших ідей. Нам дуже подобається як все вийшло в результаті. Нам дуже пощастило з виконробом Романом, він помічав дуже багато деталей в процесі роботи, йому величезна дяка.”
“Враження в цілому позитивні, подобається саме виконання дизайну, тому що ми хвилювалися з цього приводу. У нашому випадку все співпадає.”
“Ми задоволені, нам сподобалася робота. Ми вже готові до етапу ремонту. Завжди були на зв’язку, на всі наші запитання ми отримували відповіді, всі наші побажання були враховані.”
“Команда діяла в зазначені терміни. Я задоволений цим проєктом, роботою всіх, хто ним займався. З усіма одразу знайшов спільну мову, і було легко співпрацювати.”
“У роботі студії «BORISSTUDIO» сподобався креатив і індивідуальний підхід до клієнта. Фахівці зуміли створити концепцію, яка дійсно сподобалася всій нашій родині.”
“У студії “BORISSTUDIO“ ми робили абсолютно все) Особливо хочеться відзначити роботу виконроба Володимира – відмінний фахівець, майстер і людина.”
“Я в захваті від роботи із студією і з дизайнерами. Вважаю, що це треба, корисно і будівництва без цього не може бути.”

Засновник та керівник
Досвід: 16 років

HR-менеджер
Досвід: 5 років

Провідний дизайнер
Досвід: 7 років

Провідний архітектор
Досвід: 16 років

Виконроб
Досвід: 12 років

Виконроб
Досвід: 12 років

Керівник напряму меблів на замовлення
Досвід: 20 років

Архітектор
Досвід: 5 років

Архітектор
Досвід: 7 років

Архітектор
Досвід: 6 років

Дизайнер
Досвід: 5 років

Архітектор
Досвід: 7 років
| 💲 Діапазон цін від | 20$ /м2 |
| 💪 Команда | 3 особи |
| 🎁 Гарантія на ремонт | 36 місяців |
| 📌 Авторський нагляд | до 12 місяців |
| ✅ Термін виконання | від 14 днів |
Технічний дизайн проект – це важливий елемент професійного ремонту у квартирах та інших житлових об’єктах. Він передбачає розробку пакета документів (планів, схем та креслень), що містять точні дані вимірів та розрахунків, які дозволяють будівельникам правильно виконати роботи для досягнення кращого результату.
Розробка технічного дизайну квартири є складним завданням, яке має виконувати лише кваліфікований архітектор. Спеціаліст враховує особливості конкретного об’єкта, а також індивідуальні побажання замовника. Професійний підхід дозволить створити оптимальні умови для проживання усієї сім’ї та кожного її члена окремо.
У стандартну послугу розробки технічного дизайн проекту в Харкові, входить пакет технічної документації, а саме плани та схеми наступних видів:
Набір пакету технічного дизайну квартири може суттєво відрізнятися, з урахуванням характеристик обраного об’єкту та особистих уподобань клієнта.
Розробка технічного пакета креслень для ремонту необхідна на етапі планування капітальних робіт. Його наявність дозволить суттєво прискорити ремонт об’єкта, а також мінімізує ймовірність помилок від будівельників. Фактично, вони виконуватимуть ремонт за суворою інструкцією.
Наявність технічного дизайну квартири в Харкові також дозволяє заощадити на закупівлі матеріалів. Точні розрахунки дають можливість придбати оптимальну кількість матеріалів, не закуповуючи істотних надлишків. В той самий час будівельники максимально точно виконують роботи без переробок.
Пропонуємо вигідні умови розроблення професійного технічного дизайну квартир та інших житлових об’єктів. Наші клієнти отримують такі вигоди:
Щоб замовити технічний дизайн в Харкові або отримати додаткову консультацію спеціаліста, зверніться до BORISSTUDO будь-яким зручним способом: написавши у форму зворотного зв’язку на сайті, зателефонувавши або через месенджери!
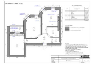
Обмірний план – фактичний план обмірів приміщень, зроблених нашими фахівцями під час виїзду на об’єкт. Обмірний план є основою всього проєкту.


План монтажу – дає змогу звести нові перегородки за заданими розмірами та фіксує новий архітектурний план об’єкта.

План розміщення меблів відображає розміщення всіх елементів меблів і обладнання в інтер’єрі, фіксує розміри і прив’язки об’єктів.

План підлоги дає можливість визначити розміщення підлогового покриття та плінтуса в інтер’єрі. У план входить специфікація підлогового покриття і плінтуса із зазначенням кількості використовуваного матеріалу.

План теплої підлоги і розташування радіаторів – дає розуміння, в яких зонах будуть розміщуватися теплі підлоги і радіатори.

План стелі відображає конструкції та тип стелі, який затверджено замовником. На плані відображені перепади стелі, ніші, з урахуванням освітлювального обладнання, закладеного в проєкті.

На плані освітлення показано прив’язки всіх освітлювальних приладів.

План розташування розеток і вимикачів відображає тип і кількість розеток із зазначенням висот і прив’язок. Залежно від пакета, план доповнюється специфікацією із зазначенням типу, кількості та марки електрофурнітури.

На схемі груп увімкнення можна побачити прив’язку вимикача до конкретного світильника.

Специфікація електрофурнітури – у зручній таблиці вказується кількість розеток і вимикачів, які використані в проєкті, а також фірма-виробник.

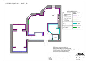
План оздоблення стін – на даному плані вказуються оздоблювальні матеріали, які будуть використовуватися для оформлення стін.

План прив’язки сантехнічного обладнання – на даному плані вказано сантехніку з осями прив’язки виведення сантехнічних точок для розводки водопостачання та водовідведення.

Розгортка стін санвузла зі схемою розкладки плитки – дає змогу побачити, на яких ділянках розташовані елементи обладнання або вбудовані конструкції. Вказуються типи покриттів, оздоблення і напрямки розкладки цих покриттів. Також позначаються двері, ніші, арки та елементи декору.




Вкажіть їх у формі нижче
