Приклад дизайн-проєкту Харків

Дизайн інтер'єру у подарунок -
при замовленні ремонту під ключ

Дизайн інтер’єру оформляється в робочий проект. Замовник отримує альбом візуалізацій, схем, креслень і таблиць в друкованому вигляді та в форматі PDF. З пакетом креслень набагато простіше керувати ремонтними роботами. Будівельники діють згідно чітким інструкціям, не відступаючи від головної ідеї дизайн-проекту.

Що входить у дизайн-проект

ВізуалізаціїПлан прив’язки світильників зі схемою включення
Обмірний планСпецифікація електрофурнітури
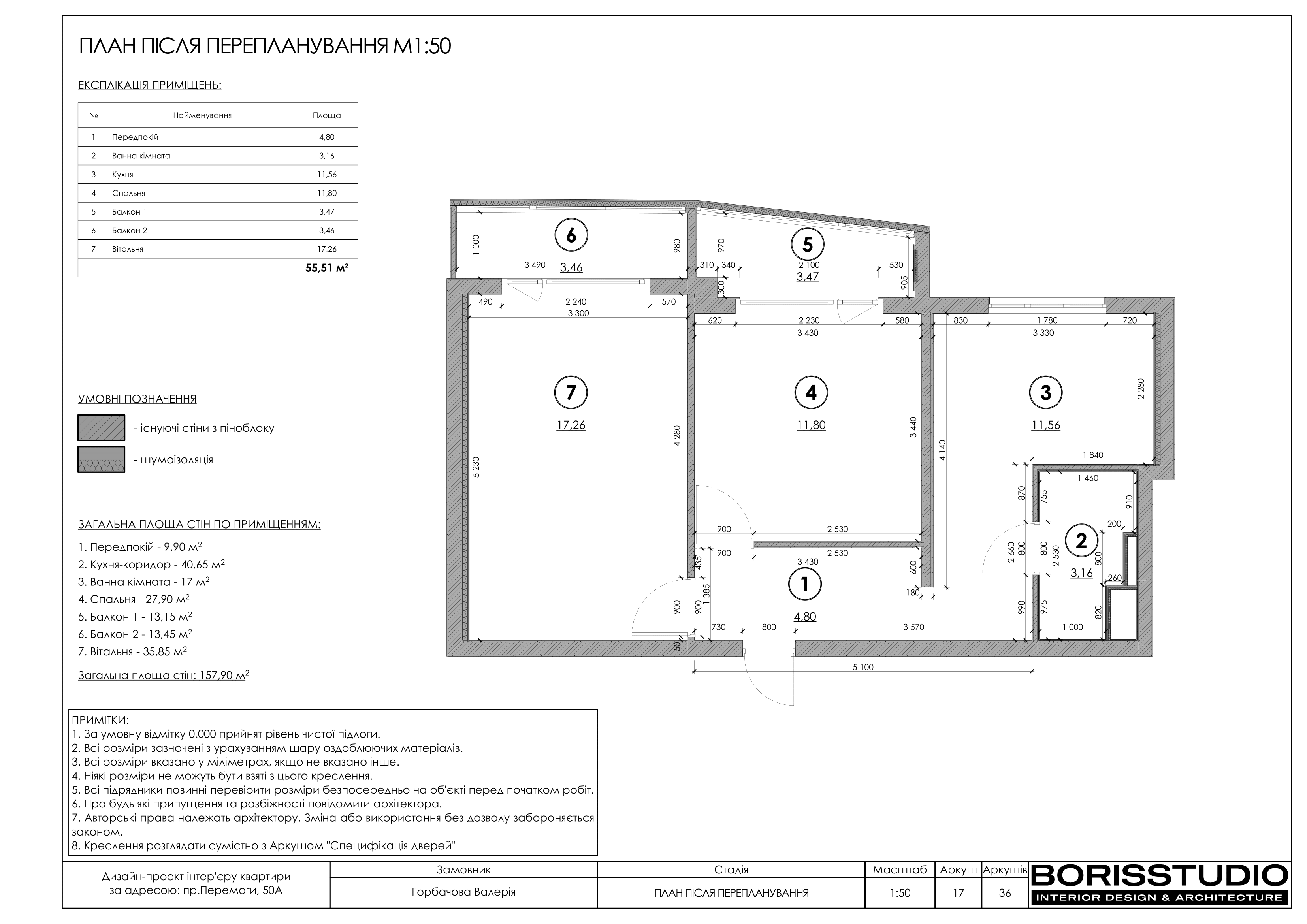
План демонтажуСпецифікація освітлювальних приладів
План монтажуПлан обробки стін
План розташування меблівВідомість обробки із зазначенням типу, кількості та назви покриттів
План підлоги із зазначенням типу покриття, плінтуса і теплої підлогиПлан прив’язки сантехнічного обладнання
План стеліСпецифікація сантехнічного обладнання
План розташування розеток і вимикачівРозгортки стін санвузла та кухні зі схемою розкладки плитки

Альбом

Візуалізація проекту допомагає побачити готовий інтер’єр ще до старту ремонтних робіт. Дизайнер наочно оформляє всі рішення і замовник узгоджує остаточний варіант.

Склад дизайн-проекту інтер’єру

Мріяти про красиве у функціональному і затишному інтер’єрі можна нескінченно, але простіше і швидше піти іншим шляхом: замовити розробку дизайн-проекту в Харкові в компанії BORISSTUDIO.

У нас багатий досвід роботи з об’єктами різної складності і планування, і ми готові створити для Вас гарний, функціональний дизайн інтер’єру, в якому комфортно і затишно. Повний склад дизайн-проекту інтер’єру Ви можете вибрати на сайті компанії, і в будь-якому випадку отримати повноцінну міні-модель гармонійного простору, в якому все буде на своїх місцях.

Які креслення входять в дизайн-проект?

Дизайн-проект – це підготовлений пакет документів, в якому зібрана вся інформація про перепланування, демонтажні/монтажні роботи, розташування інженерних мереж і обладнання, розміщення меблів та інше.

В незалежності від того, який перелік документів містить склад дизайн-проекту для квартири (дизайн-проект квартири), він дає загальне уявлення про те, яким гарним і функціональним буде простір квартири після завершення ремонту.

Компанія BORISSTUDIO пропонує пакети послуг з різним складом. Ви можете вибрати дизайн-проект «Мінімальний» з базовим набором послуг, куди входять всі необхідні для ремонту креслення + візуалізації дизайну інтер’єру. Такий варіант проектування універсальний, підходить для тих, хто вирішив виконати ремонт своїми силами, і має базові поняття, що і як робити. Також його можна передати ремонтній бригаді: в цьому випадку проект стане керівництвом до дії.

Для тих, хто хоче максимальної конкретики, пропонуються ще три варіанти проектування з розширеним складом, які містять:

  • Повноцінну 3D-візуалізацію майбутнього інтер’єру в декількох ракурсах з розгорткою всіх чотирьох стін за потребою;
  • Обмірний план, схеми, креслення, планувальне рішення;
  • плани демонтажу/монтажу, підлоги/стелі, оздоблення стін, прив’язки світильників до системи включення, розеток і вимикачів та інші плани, які можна детально розглянути в кожному конкретному пакеті;
  • Специфікації на матеріали, меблі, обладнання, електрофурнітуру та інше з активними посиланнями на інтернет-магазини, де можна придбати ці товари.

Такий тип дизайн-проекту оптимальний при виконанні капітального ремонту просторої двох-, трьох- або чотирикімнатної квартири, таунхауса, приватного будинку або котеджу, для яких, з урахуванням великої площі, дуже складно підібрати єдину концепцію, стиль, декор, щоб інтер’єр став зручним, функціональним і практичним для всіх членів сім’ї.

Дизайн-проект інтер’єру квартири: замовити в студії дизайну та ремонту BORISSTUDIO

Чому варто замовити дизайн-проект у професіоналів?

Дизайнерський проект інтер’єру квартири або будинку – це не шаблон. Кожен дизайн-проект унікальний, і не тільки тим, що створюється ексклюзивний, ні на що не схожий інтер’єр, адаптований під образ життя і звички однієї людини або цілої сім’ї. Всі дизайн-проекти відрізняються один від одного переліком документації, етапами і обсягом робіт, масштабом, вартістю та іншими моментами, які складно прорахувати самостійно, не маючи досвіду і знань.

Студія дизайну та ремонту BORISSTUDIO пропонує 4 типи дизайн-проектів з різним складом, в спектрі яких ви можете вибрати кращу пропозицію, але в будь-якому випадку, отримати відмінний результат і красивий, комфортний простір після завершення ремонтних робіт.

Додаткові переваги співпраці з компанією BORISSTUDIO:

  • Економія часу і сил;
  • Оптимізація витрат на матеріали, меблі, обладнання та безпосередньо ремонтні роботи;
  • Детальні планувальні рішення і повний комплект креслень для якісної роботи;
  • Підбір меблів + виготовлення меблів на замовлення;
  • Частковий або повний авторський нагляд.

Послуга авторського нагляду вкрай необхідна при виконанні великого обсягу робіт: це стане гарантією, що ремонт буде виконаний в строгій відповідності з проектною документацією без будь-яких додаткових фінансових витрат.

Дизайн-проект інтер’єру: склад і вартість послуги

Якщо Вам потрібне ретельне опрацювання кожної деталі в інтер’єрі: довірте розробку дизайну інтер’єру компанії BORISSTUDIO в тому складі дизайн-проекту, який підходить Вам по бюджету.

Дизайнери нашої студії мають чималий досвід, щоб створити для Вас повноцінний дизайнерський проект, на основі якого буде виконаний якісний ремонт.

Повна вартість дизайн-проекту залежить від різних чинників, але ви будете точно знати вартість проектування за кв. м при виборі одного з пакета послуг:

  • Візуальний – оптимальний варіант для тих, кому важливо побачити картинку майбутнього інтер’єру та скоригувати її, якщо це буде потрібно.
  • Технічний — стандартний набір креслень для того, щоб почати ремонт, який не включає візуалізацію приміщення.
  • Все включено – оптимально повний і доступний з урахуванням акції пакет документів, який включає плани, креслення, розгортки, специфікації, відомість + частковий авторський нагляд.
  • Максимальний – містить весь можливий перелік документації і передбачає повний авторський нагляд, який стане гарантією чудового кінцевого результату.

Залишилися питання по вартості або ви не можете визначитися з вибором пакета послуг – наші менеджери проконсультують і дадуть максимально вичерпну інформацію по всіх видах дизайн-проектів. Направте своє питання в формі зворотного зв’язку або скористайтеся зручною функцією «Передзвоніть мені».

Порядок оплати дизайн-проєкту

01 етап
10%
передоплата під час укладання договору
02 етап
30%
оплата після затвердження планування
03 етап
30%
оплата після затвердження всіх візуалізацій
04 етап
30%
оплата у кінці проекту