

Цей дизайн-проєкт студія розробила для молодої пари – UX/UI дизайнера та програміста, які люблять книги, подорожі та спільний перегляд фільмів. Анна захоплюється виготовленням кераміки, а Антон цікавиться відеомонтажем та роботою зі звуком – їхнє хобі ми врахували під час роботи над проєктом.
Серед побажань замовники окреслили:
Під час роботи над проєктом ми врахували всі побажання замовників, запропонувавши наступні рішення:
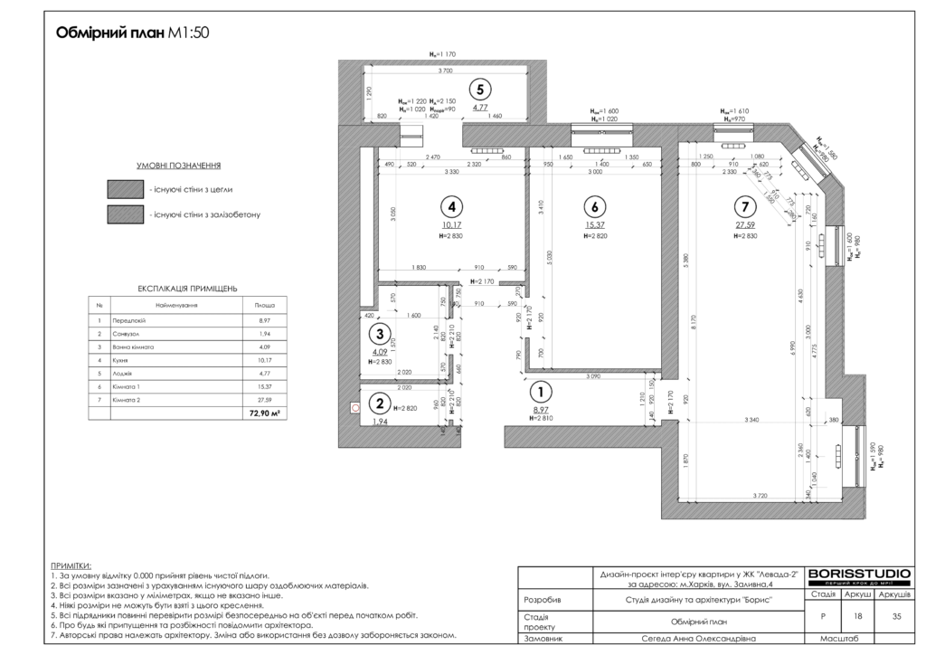
Завдяки пастельним відтінкам в оформленні, лаконічним меблям і дверям, пофарбованим під колір стін, передпокій площею 11,38 м2 здається ще світлішим і просторішим. Праворуч від входу розташувалася мінімалістична консоль з відсіками для взуття, поруч із нею передбачили місце під зарядну станцію робота-пилососа.
Замість класичних гачків для верхнього одягу, ми запропонували використовувати лаконічну вішалку, дизайн якої гармонійно перегукується з оформленням підвісного світильника. Крім шафи для одягу у передпокої також передбачили бар, який завдяки контрастному кольору та декоративному підсвічуванню виконує роль візуального акценту.
Інтер'єр кухні-вітальні площею 19,71 м2 вийшов барвистим та життєрадісним. Простір розділений на три функціональні зони: кухню, обідню зону та місце для відпочинку. У зоні кухні особливу увагу привертає до себе не гарнітур, а стіна, оформлена за допомогою склоблоків – вони вносять в інтер'єр більше фарб, підіймають настрій.
З урахуванням побажань замовників замість класичного обіднього столу ми передбачили барну стійку, стільницю якої прикрашає декоративна вставка з епоксидної смоли. Навколо неї розмістилися напівбарні стільці двох видів.
Ціла стіна у вітальні виділена під зберігання книг та розміщення телевізора. Іншу стіну ми запропонували пофарбувати спеціальною фарбою, щоб на ній можна було дивитися фільми через проєктор. Одним із головних акцентів вітальні стало підвісне крісло з яскраво-жовтою подушкою – воно додає атмосфері особливого затишку.
На лоджії, площа якої становить 4,77 м2, ми організували творчу майстерню. З одного боку розташувалися полиці для зберігання керамічних виробів, надалі тут буде встановлена муфельна піч, для якої ми передбачили розетки. На протилежному боці організували невелику зону відпочинку, представлену компактним диванчиком – сидячи на ньому можна буде милуватися видом, що відкривається з вікна.
Перше, що притягує до себе погляд в інтер'єрі ванної кімнати – акцентна стіна, виконана зі склоблоків та додатково виділена насиченим жовтим кольором, який подобається замовниці. Щоб інтер'єр не здавався надто перевантаженим, решту простору ми оформили у нейтральних кольорах.
На площі в 3,77 м2 розмістили все необхідне: ванну з шумоізоляцією, доповнену лаконічною скляною шторкою, вбудовані полички для зберігання шампунів, гелів та іншого, рушникосушарку, стільницю зі штучного каменю з інтегрованим умивальником, висувні ящики. Також передбачили місце під пральну машину.
Щодо оформлення санвузла площею 1,40 м2 замовники висловили нестандартне побажання – оформити підлогу та стіни лінолеумом. Ми вибрали світле покриття комерційного класу, що має максимальний рівень зносостійкості. Контрастом до нього стала чорна сантехніка та одна зі стін, оформлена за допомогою МДФ панелей.
Площу у 2,76 м2 ми використали по максимуму, розташувавши в кімнаті зручне крісло, робочий стіл та відкриту полицю. Для забезпечення необхідної тиші дизайн-проєкт передбачає додаткову шумоізоляцію стін і стелі. Об'ємні панелі та світлодіодне підсвічування по периметру стелі допомагають створити камерну обстановку, в якій ніщо не відволікатиме від роботи.
Завдяки переплануванню у квартирі вдалося організувати повноцінний гардероб площею 4,34 м2, в якому ми розмістили відсіки з рейлінгами, відкриті полиці та закриті секції.
Наявність одночасно трьох вікон робить спальню наповненою світлом, ми посилили цей ефект завдяки світлому оздобленню. Інтер'єр кімнати площею 12,82 м2 не перевантажений деталями, в ній розмістилося лише найнеобхідніше – зручне ліжко, тумба і дамський столик з дзеркалом і пуфом.
Цікавим інтер'єрним акцентом стала розсувна перегородка, що відокремлює гардероб від спальні. Вона виконана із прозорого скла з кольоровими вставками, завдяки чому її дизайн перегукується з оформленням перегородки між кухнею та санвузлом.
Зараз ця кімната площею 7,65 м2 використовується як кабінет, надалі вона перетвориться на дитячу. Тому, крім робочого столу біля вікна та систем зберігання, ми передбачили у ній ліжко. Своєрідною особливістю інтер'єру стала стіна, яку було запропоновано пофарбувати спеціальною фарбою – надалі на ній можна буде малювати маркерами.
З урахуванням побажань замовників в оформленні переважають світлі відтінки. Основним кольором став Naturweiß із каталогу Caparol 3d system plus. Частина стін у передпокої, вітальні та на лоджії забарвлена в колір Palazzo 55, для дитячої використали Granit 50. Як акцентний вибрали соковитий жовтий відтінок, він присутній в оформленні меблів, текстилю, перегородки у ванній кімнаті та спальні.
У цьому проєкті ми традиційно залучили кілька сценаріїв освітлення з використанням різних видів світильників. Крім стельового LED-підсвічування передбачили:
Перепланування дозволило організувати окремий гардероб, який забезпечує достатньо місць для зберігання речей. Проєкт передбачає шафу у передпокої, містку шафу для книг, додаткові системи зберігання також було запропоновано розмістити у кабінеті.
У цьому проєкті нам вдалося реалізувати всі побажання замовників. Він вже втілений у життя, з результатами ремонту Ви можете детально ознайомитись завдяки нашим фото- і відеооглядам.

Запишіться на безкоштовну консультацію, і ми Вам передзвонимо
