Дизайн-проєкт інтер’єру квартири в ЖК “Республіка”

Про проєкт
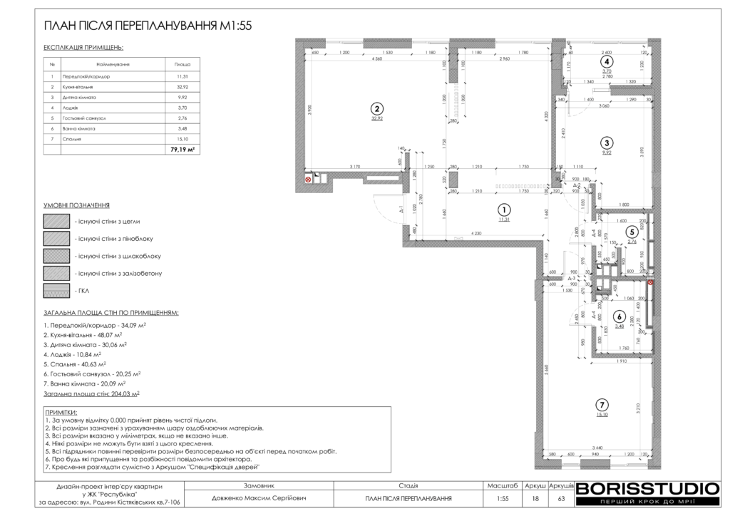
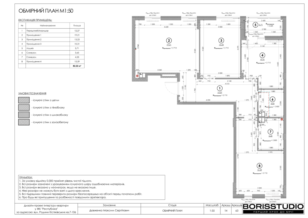
м. Київ, вул. Родини Кістяківських, 7
82,22 м²
ЖК "Республіка"
2025 рік
Мінімалізм
Команда проекту
Дизайн-проєкт інтер’єру квартири в ЖК “Республіка”
Анна
Провідний дизайнер
Дизайн-проєкт інтер’єру квартири в ЖК “Республіка”
Дар'я
Провідний архітектор
Дизайн-проєкт інтер’єру квартири в ЖК “Республіка”
Анастасія
Архітектор

Візуалізація

Відгук

Дизайн-проєкт інтер’єру квартири в ЖК “Республіка”
Максим Довженко
5.0
Обрав компанію або точніше команду BorisStudio для ремонту квартири під ключ, завершився перший етап, а саме дизайн-проєкт! Хочу поділитися своїми враженнями співпраці: - дуже класна комунікація замовник/виконавець; - професійний підхід та розуміння своєї справи; - дівчата Даша та Аня, саме вони займалися моїм проєктом, на звʼязку 24/7 - вам особлива подяка; - всі побажання, зауваження приймалися до уваги та корегувалися дизайнерами; - надавали достатньо корисні поради відносно реалізації тих чи інших побажань/забаганок.Бажаю вам якомога більше проєктів та задоволених клієнтів, ви рухаєтесь в потрібному перспективному напрямку!😎😎😎Для тих, хто шукає виготовлення дизайн-проєкту або все, що повʼязано з ремонтом - обовʼязково звертайтеся до BorisStudio!

Інші наші роботи

Дизайн інтер’єру та ремонт квартири в ЖК “Taryan Towers”
Дизайн інтер’єру та ремонт квартири в ЖК “Taryan Towers”

81,51 м²

м. Київ, вул. Іоанна Павла II, 12

Дизайн інтер’єру та ремонт квартири на вул. Ольгінська
Дизайн інтер’єру та ремонт квартири на вул. Ольгінська

67,99 м²

м. Київ, вул. Ольгінська, 6

Дизайн та ремонт двокімнатної квартири в ЖК “Файна Таун”
Дизайн та ремонт двокімнатної квартири в ЖК “Файна Таун”

61,47 м²

м. Київ, вул. Салютна, 18-26