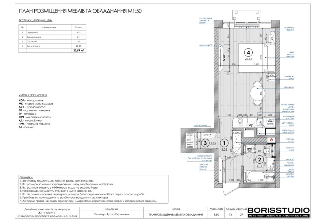
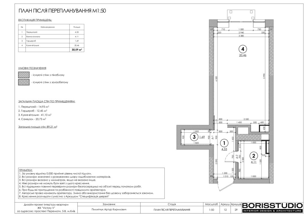
Дизайн-проект квартири-студії в ЖК «Victory V»

Про проєкт
м. Київ, просп. Перемоги, 5В
33,77 м²
«Victory V»
2023 рік
Мінімалізм
Команда проекту
Дизайн-проект квартири-студії в ЖК «Victory V»
Анна
Провідний дизайнер
Дизайн-проект квартири-студії в ЖК «Victory V»
Дар'я
Провідний архітектор
Дизайн-проект квартири-студії в ЖК «Victory V»
Крістіна
Дизайнер
Дизайн-проект квартири-студії в ЖК «Victory V»
Анастасія
Архітектор

Візуалізація

Інші наші роботи

Дизайн-проект квартири-студії у ЖК «Дніпровський»
Дизайн-проект квартири-студії у ЖК «Дніпровський»

34,85 м²

м. Київ, вул. Гродненська, 14

Дизайн інтер’єру однокімнатної квартири в ЖК “Podil Plaza & Residence”
Дизайн інтер’єру однокімнатної квартири в ЖК “Podil Plaza & Residence”

35,74 м²

м. Київ, вул. Глибочицька, 73

Дизайн-проект однокімнатної квартири у ЖК «Файна Таун»
Дизайн-проект однокімнатної квартири у ЖК «Файна Таун»

39,86 м²

м. Київ, вул. Салютна, 2