


Замовниками цього дизайн-проєкту стала молода пара. Серед своїх побажань Ігор та Олеся вказали:
У проєкті командою студії було запропоновано такі рішення:
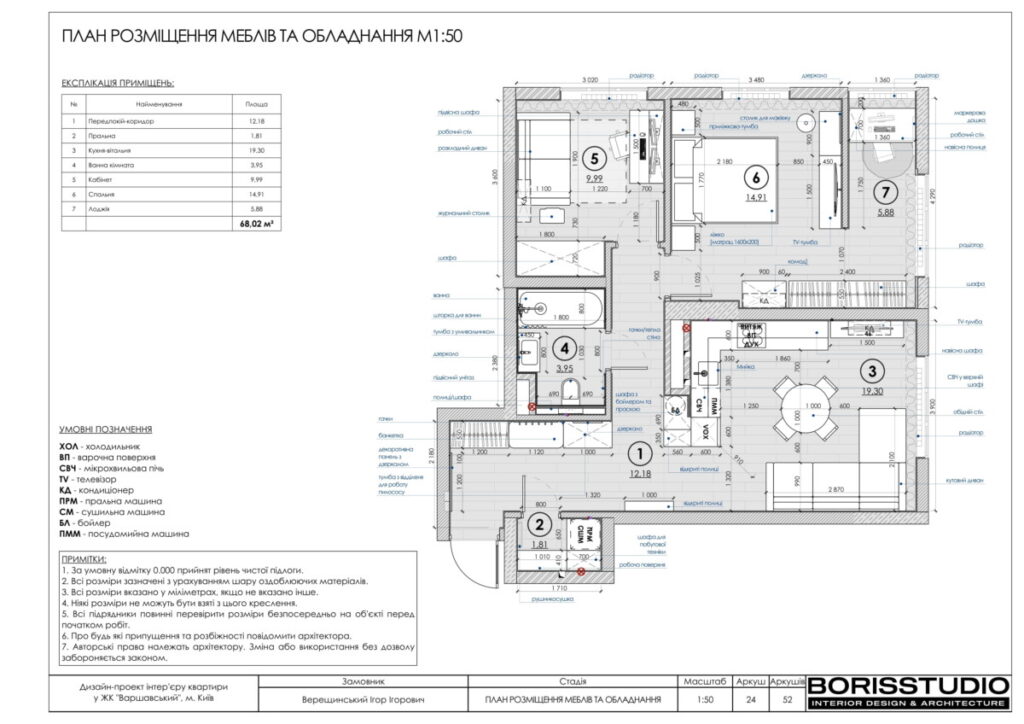
Передпокій у квартирі просторий — 12,18 м2, його площу ми використали з максимальною користю. Біля стіни навпроти входу до квартири розташувалися містка тумба з відділенням для робота-пилососа, дзеркало, гачки для верхнього одягу шафа та банкетка з відсіком для взуття. Додатково передбачили ще одне дзеркало заввишки до стелі. На кордоні між передпокоєм та кухнею розміщуватиметься шафа, в якій сховається бойлер, і вистачить місця для зберігання дошки для прасування.
Попри на відсутність джерела природного світла, передпокій виглядає світло та затишно. Цьому сприяють світлі відтінки та текстура дерева в оформленні, а також продумане освітлення. Як елементи декору в передпокої використали лаконічний настінний годинник і кілька відкритих полиць з декоративним підсвічуванням.
Пральня площею 1,81 м2 вийшла максимально функціональною. У ній ми передбачили місця для пральної та сушильної машин, рушникосушарку для рушників, кілька полиць для зберігання рушників та різних аксесуарів. Для оздоблення вибрали керамогранітну плитку під камінь. Вона виглядає лаконічно, стильно, до того ж керамограніт — одне з найпрактичніших рішень для таких приміщень.
У кухні-вітальні, площа якої складає 19,30 м2, як і хотіли замовники, ми використовували контрастні поєднання кольорів. Такий прийом робить інтер'єр ще приємнішим візуально, до того ж комбінація кількох кольорів допомагає зонувати простір.
У центрі кухні-вітальні розташувалася обідня зона, представлена лаконічним розкладним столом з круглою стільницею зі шпонованого МДФ та основою з масиву дерева. Кутовий місткий гарнітур забезпечує не тільки безліч місць для зберігання продуктів, побутової техніки та різного кухонного начиння, але й створюють простору робочу поверхню. Готувати на такій буде максимально зручно.
Головними візуальними акцентами кухні-вітальні стали м'які меблі (комфортний кутовий диван та обідні стільці з витонченими округлими спинками), а також оформлення TV-зони з телевізором та консоллю. Як декор у зоні відпочинку було запропоновано використовувати модульну картину Forest.
Особливу увагу в інтер'єрі ванної кімнати площею 3,95 м2 привертає акцентна стіна із дзеркалом, для оздоблення якої було запропоновано використати керамогранітну плитку з ефектним дизайном під мармур. За кольором з нею перегукується шафа, пофарбована у відтінок Ocean blue. Ці два елементи створюють стильний контраст до світлої плитки, якою облицьована решта ванної кімнати. З урахуванням побажань замовників, передбачено повноцінну ванну замість душового куточка, а також встановлення тропічного душу.
Ще одним цікавим рішенням у ванній кімнаті стала відмова від стандартної рушникосушарки. Натомість ми передбачили теплу стіну — систему опалення, яка виконується за технологією теплої підлоги, але при цьому монтується безпосередньо в стіну.
Інтер'єр кабінету площею 9,99 м2 вийшов лаконічним та функціональним, у ньому створено всі умови для комфортної роботи. Безпосередньо робоча зона представлена столом із місцем для комп'ютера, підвісною шафою та зручним ергономічним кріслом із текстильною оббивкою. Нішу ліворуч від входу в кімнату задіяли з користю — у ній було запропоновано розмістити шафу.
Розкладний диван не тільки є місцем для комфортного відпочинку. Його насичений синій колір створює контраст до сірих відтінків, які переважають в інтер'єрі кабінету. Ще один декоративний елемент — панель з ДСП Egger Лава сіра U741 ST9, доповнена прихованим підсвічуванням та картиною.
У спальні площею 14,91 м2 нам вдалося розмістити безліч місць зберігання: комод, шафу, приліжкові тумби, а також тумбу під телевізор. Навіть стильний пуф, розташований поблизу столика для макіяжу, можна використовувати як систему зберігання — у нього знімне сидіння, всередині можна розмістити різні дрібні аксесуари. В основі палітри кольору в спальні ми використовували білий і сірий — класичне поєднання нейтральних кольорів, яке ніколи не втрачає своєї актуальності.
Як і хотіли замовники, на лоджії проєкт передбачає організацію затишного робочого місця. На площі 5,88 м2 ми розмістили робочий стіл, офісне крісло, кілька полиць, маркерну дошку. Головним візуальним акцентом цієї зони стали фотошпалери з зображенням ліній та листя.
Замовникам подобаються контрастні поєднання кольорів, і ми врахували це при розробці колірної палітри для даного дизайн-проєкту інтер'єру. Основним кольором в оформленні передпокою та кухні-вітальні став GRANIT 50 із колекції кольорів Caparol 3D-System Plus. Зелена стіна у TV-зоні виконана у кольорі: PINIE 45|L63 C22 H114. В інтер'єрі кабінету та спальні ми використовували кольори GRANIT 50, GRANIT 10, GRANIT 60. У спальні зона TV оформлена за допомогою OFF WHITE 50. Як контрастні вкраплення залучили м'які та корпусні меблі, а також декоративні елементи.
Продумане освітлення з використанням кількох видів джерел світла — дуже важлива частина будь-якого гарного дизайну інтер'єру. Завдяки цьому можна досягти рівномірного освітлення всіх приміщень, візуально зонувати простір, до того ж стильні світильники можуть додатково грати роль декору. У цьому проєкті команда студії використала:
Продумані системи дозволяють грамотно організувати зберігання у квартирі, не залишаючи на видноті нічого зайвого і не перевантажуючи простір. Шафи передбачені в кожному приміщенні: передпокої, спальні, кабінеті, пральні, ванній кімнаті, на кухні за зберігання відповідає місткий кутовий гарнітур.

Запишіться на безкоштовну консультацію, і ми Вам передзвонимо
