
Дизайн кухні без верхніх шаф – досить популярне рішення, яке має свої переваги та недоліки. У сьогоднішньому матеріалі розповімо докладніше про плюси та мінуси такого оформлення, варіанти планування та альтернативи для верхнього ряду гарнітура.
Потрібно визначити, як і де буде розташована витяжка. У двоярусних гарнітурах її часто вбудовують в одну з навісних шаф, за відсутності верхнього ряду гарнітура такий варіант неможливо реалізувати. У цьому випадку вибирають настінні або стельові витяжки, благо сучасні моделі мають стильний і привабливий дизайн, який зробить їх одним з акцентів інтер’єру.
Вибір здійснюють між відвідними та рециркуляційними витяжками. Перші підключаються до загальнобудинкової системи вентиляції, повітропровід маскують за допомогою декоративного короба або залишають на видноті (у випадку, коли кухня виконана в стилі лофт). Якщо рішення з повітроводом вам не подобається, можна вибрати витяжку рециркуляційного типу. Вона не потребує підключення до системи вентиляції. Подібні вироби працюють за наступним принципом: втягують забруднене повітря, пропускають його через систему фільтрів і вже очищеним повертають назад до приміщення.
Розробляючи дизайн-проєкт кухні без верхніх шаф, особливу увагу приділяють проєктуванню простору. Необхідно ретельно продумати планування приміщення, щоб зробити його зручним та функціональним.
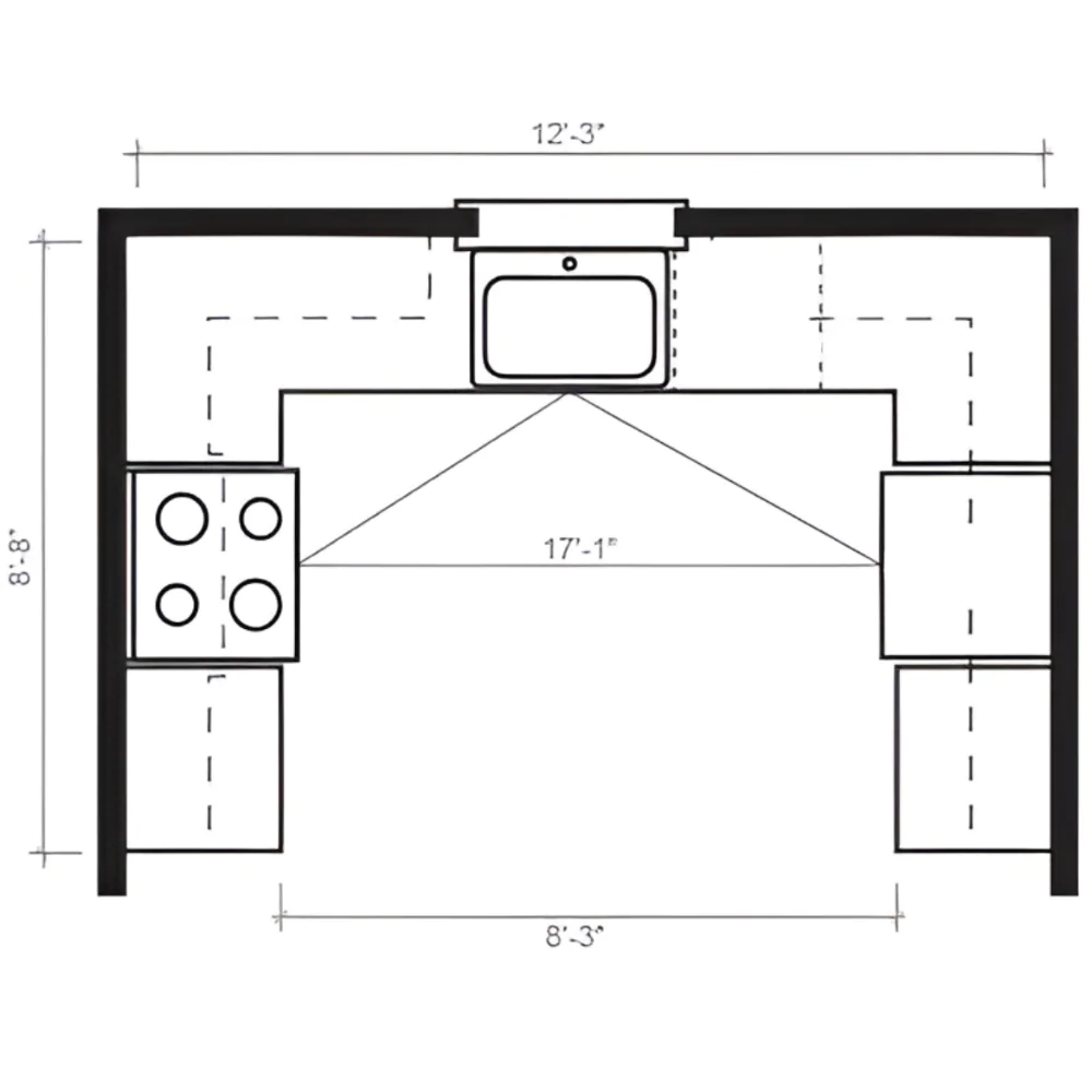
Г-подібна кухня без верхніх шаф – універсальне рішення, яке підходить як для маленьких, так і для просторих приміщень. У цьому випадку гарнітур розташований вздовж двох перпендикулярних стін. Кутове планування дозволяє легко реалізувати правило робочого трикутника, в цьому випадку біля однієї зі стін зазвичай розміщують холодильник і мийку, біля іншої – варильну поверхню і духову шафу.
Шафи встановлюють уздовж довгої стіни кухні. Таке планування підійде для маленьких приміщень або кімнат з вузькою формою. Недолік такого рішення – неможливість повною мірою організувати правило робочого трикутника.
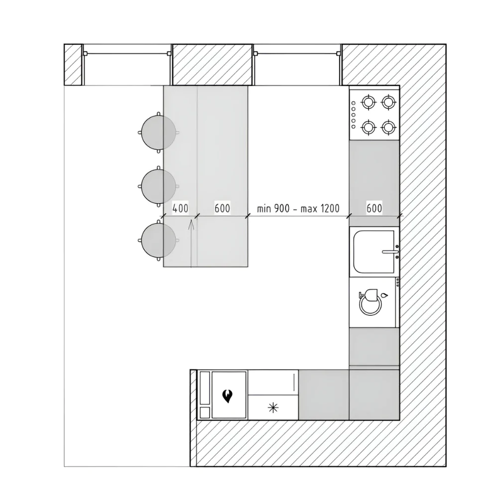
Підлогові шафи розміщують вздовж трьох поряд розташованих стін. П-подібне планування дає можливість компенсувати відсутність верхнього ряду гарнітура та забезпечити достатню кількість місць зберігання. Замість одного з рядів гарнітура можна встановити барну стійку, яка одночасно зможе виконувати роль додаткової робочої поверхні та обідньої зони.
Передбачає установку двох рядів шаф паралельно один одному вздовж двох найдовших стін кухні. Як і П-подібне, паралельне планування дозволить забезпечити достатньо місць зберігання, але воно не підійде для оформлення маленьких приміщень.
Щоб дизайн кухні без верхніх шаф вийшов привабливим та радував мешканців, необхідно правильно підібрати інтер’єрний напрям. Найкраще одноярусний гарнітур буде виглядати в інтер’єрі у стилі лофт або хай-тек, він також впишеться в сучасну, мінімалістичну або сканді стилістику.
Стиль лофт передбачає відкритий простір, він добре підійде для оформлення кухні, об’єднаної з вітальнею. Відмінні риси такого дизайну:
Дизайн кухні без верхнього ярусу в стилі хай-тек дозволяє отримати дуже функціональний простір, в якому величезна увага приділяється сучасним технічним досягненням. Це вдале рішення для шанувальників високих технологій. Для хай-теку характерні:
Сучасний дизайн кухні без навісних шаф допоможе створити стильний, функціональний і затишний простір, в якому немає нічого зайвого. Для цього напряму характерні:
Дизайн кухні без верхнього ярусу в стилі мінімалізм – один з головних трендів останніх років, який не втрачає своєї актуальності. Цей стиль однаково добре виглядає як у просторих приміщеннях, так і в умовах обмеженого простору. Для нього характерні:
Скандинавський дизайн кухні без верхніх шаф приваблює теплою затишною атмосферою. При цьому функціональність у ньому має першорядне значення, тому готувати на такій кухні максимально зручно. Впізнаваним сканді роблять:
Багатьом кухня без верхнього ярусу здасться непрактичним рішенням, але насправді воно має ряд переваг.
Попри переваги, кухня без верхнього ярусу не ідеальна. Є в неї свої недоліки, які варто враховувати при плануванні кухонного простору.
До головних мінусів такого рішення можна віднести:
Попри те що кухня без верхнього ярусу – варіант не для всіх, є ситуації коли вона стане оптимальним рішенням. Наприклад, якщо йдеться про одну людину чи молоду пару, які не надто часто й багато готують. В такому випадку цілком вистачить лише нижнього ряду гарнітура.
Однорядна кухня також підійде людям, які віддають перевагу мінімалізму в оформленні, вона буде виглядати більш лаконічно ніж двоярусний варіант.
Продумуючи дизайн-проєкт кухні без верхнього ярусу, необхідно визначитися з оформленням фартуха. Зазвичай його висота визначається розміщенням навісних шаф, але у випадку з одноярусним гарнітуром це не актуально.
Найбільш популярними матеріалами для оздоблення фартуха залишаються керамічна плитка або керамограніт. Плиткою можна викласти всю стіну, біля якої розміщений гарнітур, якщо таке рішення вписується у загальну концепцію оформлення. Або використовувати її лише до нижнього краю витяжки. Головне, щоб висота фартуха становила не менше 60 см. Якщо плиткою облицьована лише частина стіни, решту поверхні можна оформити за допомогою стінових панелей, мікробетону, декоративної штукатурки. Шпалери для робочої зони – не дуже практичне рішення.
Одна зі складностей, з якими можна зіткнутися, продумуючи дизайн-проєкт кухні без верхніх шаф – необхідність передбачити достатню кількість місць для зберігання. У цьому випадку допоможуть кілька рекомендацій:
Освітлення – дуже важлива частина оформлення кухні, від нього безпосередньо залежатиме зручність та безпека під час готування. При двоярусному гарнітурі складнощів з підсвічуванням робочої поверхні не виникає – достатньо розмістити світлодіодну стрічку в нижній частині навісних шаф. Такий спосіб освітлення підійде й у випадку, якщо замість верхнього ярусу гарнітура використовують полиці.
Якщо проєкт кухні не передбачає ні верхніх шаф, ні полиць, для освітлення робочої поверхні використовують настінні та/або стельові світильники зі спрямованим світловим потоком.