Зміст

Фантазії про ідеальний будинок, де все знаходиться на своїх місцях, легше представити, ніж реалізувати. Тут недостатньо тільки хорошої уяви і опису майбутніх інтер’єрних композицій на словах: для будівельників і обробників потрібні схеми і креслення, тобто повна технічна документація, або по-іншому, технічний проект в Києві.
Говорячи енциклопедичною мовою, технічний проект – це стадія розробки документації на виріб (конструкцію) або на створення автоматизованої системи. Сукупність технічних документів, що входять в проект, містить остаточні проектні рішення, тобто є чітким планом, якому необхідно слідувати для отримання бажаного результату.
У випадку з ремонтом приміщень, технічний проект квартири в Києві або об’єктів заміської/комерційної нерухомості – це інженерна частина будівельних і ремонтних робіт, а саме підготовка повного пакету документів : креслення дизайну, плани, схеми, специфікації, які стануть для майстрів свого роду керівництвом до дії.
Технічна документація – головний інструмент комунікації з будівельною бригадою і гарантія якісно виконаного ремонту. Це той же дизайн-проект капітального ремонту в Києві з єдиною відмінністю: в технічному проекті відсутня 3D-візуалізація, по-іншому об’ємна міні-модель майбутнього інтер’єру з детальним промальовуванням архітектури кожного приміщення об’єкту і інтер’єрних рішень.
І це не критично, оскільки документація технічного проекту – це повний пакет документів, який:
Дизайнер і проектувальник не беруть ідеї з голови. Спочатку усі інтер’єрні рішення обговорюються із замовником, а дизайнер продумує і відбиває загальний концепт і модель майбутнього дизайну інтер’єру в Києві в кресленнях і схемах. Вони можуть бути не особливо зрозумілі для замовника, але максимально прозорі для виконробів і майстрів будівельної бригади в Києві.
Основна мета технічного проекту – донести до будівельної бригади ідеї і задуми майбутнього дизайну інтер’єру, які необхідно реалізувати з високою точністю, і це можна зробити тільки за наявності грамотного опрацювання усіх деталей.
Виконання технічного проекту слід замовити в дизайнерській студії, яка є професіоналом на будівельному ринку, має хорошу репутацію, досвід, багате портфоліо і гарантує високу якість роботи, підтверджену відгуками вдячних клієнтів.
Професійна розробка проектної документації забезпечує цілий ряд переваг:
Точне дотримання технічної документації дизайну інтер’єру в Харкові об’єкту – це не лише економічний чинник і оптимальна ергономіка простору, це ще і скорочення термінів ремонтних робіт + відсутність помилок і недоліків при монтажі перегородок, систем і устаткування.
Розробляти проект слід до початку ремонтних робіт, в незалежності від того, де планується проведення ремонту: в типовій міській квартирі або заміському будинку. Крім того, технічний дизайн-проект украй потрібний при виконанні ремонту в заміських котеджах в Києві і багаторівневих таунхаусах: виявлення недоліків і виправлення помилок після завершення ремонтних робіт може обійтися власникові нерухомості дуже дорого.
Отже, ми з’ясували, для чого потрібний технічний дизайн-проект, і які переваги він дає власникові квартири, будинку в Харкові або котеджу. Але для розуміння усього процесу розробки проектної документації, слід знати про основні етапи створення проекту.
Робота над проектом розпочинається зі збору інформації і заповнення дизайнерського брифа. Це один з головних етапів, на опрацюванні якого вивчається об’єкт проектування:
На цьому етапі виявляються побажання замовника, узгоджується принципове зонування об’єкта, заповнюється бриф.
На цьому етапі створюється планувальне рішення, яке є кістяком майбутнього дизайну інтер’єру в Харкові. У цій частині роботи продумується ергономіка простору, яка формуватиме зручність і функціонал приміщень, а значить і загальний комфорт.
Дизайнер створює ескізи з розгорткою в декількох варіантах, які надаються замовникові на розгляд, вибір кращого варіанту і затвердження вибраної концепції дизайну інтер’єру в Харкові. Спільне опрацювання ескізної частини дозволяє замовникові як можна повніше уявити собі майбутній інтер’єр.
Попри те, що в технічний проект не входить 3D -візуалізація в Харкові, при необхідності Ви завжди може отримати рекомендації дизайнерів.
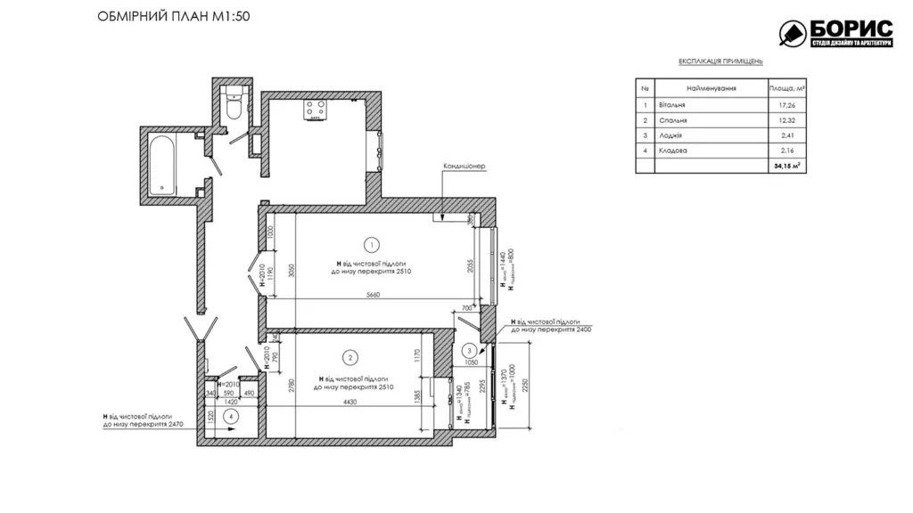
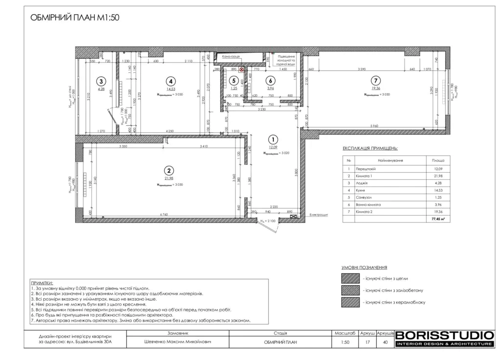
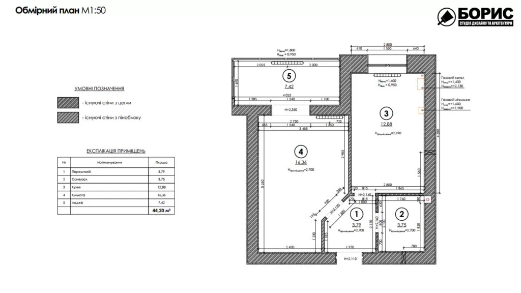
Цей етап проектування включає підготовку повної технічної документації, яка містить:
Склад креслень технічного проекту може змінюватися (зменшуватися або розширюватися) залежно від того, який пакет послуг вибраний в кожному окремо взятому випадку. У разі створення складних інженерних систем, наприклад, системи відеоспостереження, пожежної сигналізації, охорони об’єкту, системи розумного будинку і інше, до розробки технічної частини і креслень притягуються вузькопрофільні фахівці.
На основі розробленої документації складається кошторис, при затвердженні якої замовник вже заздалегідь планує бюджет майбутнього ремонту. При необхідності в кошторис можуть бути внесені коригування, але вони повинні виконуватися до початку ремонтних робіт, аж до того моменту, поки дизайнер і замовник не прийдуть до єдиного результату.
Підготовлений пакет технічної документації верстається в альбом і передається замовникові.
Студія, що займається проектуванням інтер’єру, може запропонувати замовникові скористатися послугою авторського нагляду, яка припускає контроль виконання ремонтних робіт відповідно до технічної документації за проектом.