
Планування квартири — один з вирішальних факторів при виборі нерухомості та основа для створення комфортного функціонального простору. Які існують види планувань, у чому їх переваги та недоліки, як створити оптимальне планувальне рішення для свого житла? У сьогоднішній статті розглянемо ці питання детальніше.
Її головна особливість — кухня, передпокій та житлова кімната, об’єднані в єдиний простір. Перегородками відокремлюється лише санвузол (частіше поєднаний). У середньому площа студії становить 18-30 м2, але можуть траплятися і варіанти з іншим метражем.
Для кого підходить? Квартира-студія може стати відповідним рішенням для однієї людини чи молодої пари без дітей.
Переваги:
Недоліки:
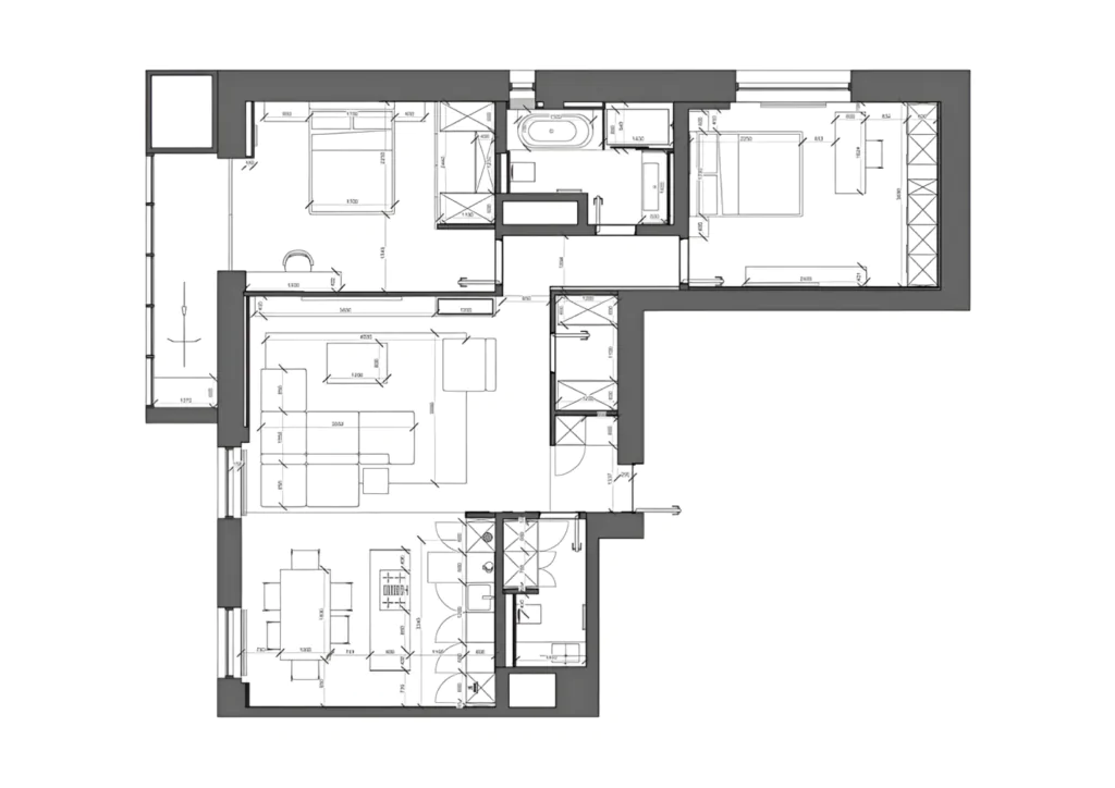
Такі квартири оснащені невеликим коридором, від якого в різні боки розходяться житлові кімнати, кухня і санвузол. Вікна у приміщеннях виходять на протилежні сторони будинку. Відмінність просторих квартир-метеликів — наявність декількох балконів, також може бути еркер.
Для кого підходить? Це зручне рішення для проживання кількох осіб, оскільки всі кімнати роздільні, ніхто з мешканців не заважатиме один одному. Планування дозволяє організувати загальну зону (вітальню), та виділити місця для усамітнення.
Переваги:
Недоліки:
У чомусь схожа з «метеликом», але при лінійному плануванні вікна всіх кімнат виходять на один бік будинку, за що цей варіант квартир і отримав свою назву. Якщо квартира кутова, вікно однієї кімнати може виходити на торець будинку.
Для кого підходить? Це універсальний варіант, який підходить для проживання кількох людей, сім’ї з дітьми.
Переваги:
Недоліки:
Цей тип планування квартир зустрічається в будинках старого житлового фонду, свою назву отримав від «гуртожитку малосімейного типу». Площа може коливатися від 13 до 30 м2, квартири оснащені власним санвузлом та крихітною кухнею.
Для кого підходить? Варіант підійде тим, хто шукає недороге житло.
Переваги:
Недоліки:
Свою назву планування отримало через те, що подібні квартири розташовані на розі будинку, вікна в них виходять на різні боки.
Для кого підходить? Для людей, які цінують тишу. Через особливості розташування у таких квартир менше суміжних стін з сусідами.
Переваги:
Недоліки:
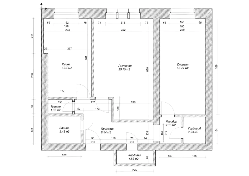
Відмінна риса — наявність мінімум однієї кімнати, в яку можна потрапити не з коридору або передпокою, а виключно з іншої кімнати. Таке планування квартир часто характерне для хрущовок.
Для кого підходить? Може підійти одній людині чи сім’ї без дітей — у цьому випадку ізольована кімната відводиться під спальню, а прохідна — під вітальню. У хрущовках живуть і сім’ї з дітьми, при цьому доводиться шукати компроміси, часто замість повноцінного спального місця для батьків використовують розкладний диван.
Переваги:
Недоліки:
Це невелика квартира, яка більше нагадує готельний номер, її площа становить близько 12-18 м2. В ній відсутня окрема зона для кухні, туалет поєднаний з ванною кімнатою.
Для кого підходить? Одній людині чи парі без дітей, а також тим, хто шукає максимально доступне за ціною житло.
Переваги:
такий тип квартир коштує дешевше за об’єкти з іншими варіантами планування.
Недоліки:
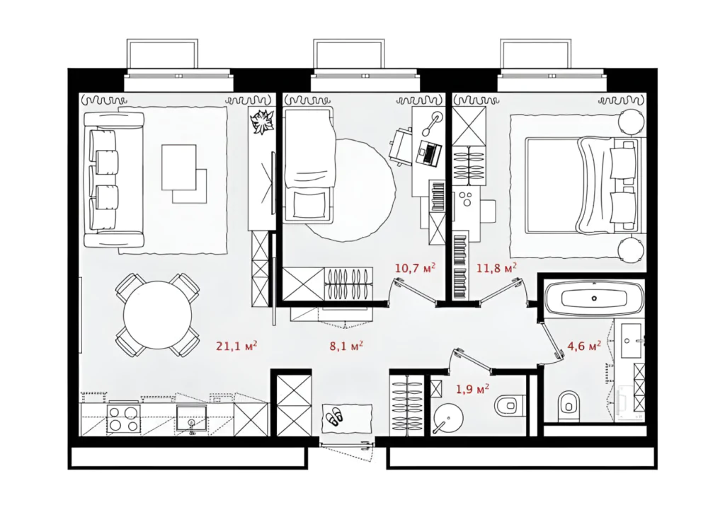
Такий варіант планування квартир передбачає наявність кухні, об’єднаної з вітальнею, а також ізольованої кімнати. Євродвушки більш функціональні в порівнянні з однокімнатною квартирою, оскільки є можливість організувати загальну та приватну зони.
Для кого підходить? Підходить для однієї людини, пари з дитиною чи без неї.
Переваги:
Недоліки:
Таке рішення можна зустріти у квартирах в новобудовах. Є максимально відкритим простором без внутрішніх перегородок, за винятком санвузла.
Для кого підходить? Це універсальне рішення, своєрідне «чисте полотно», яке можна оформити, виходячи з власних уподобань та потреб.
Переваги:
Недоліки: