
Грамотно продумане планування будинку – запорука того, що жити в ньому буде комфортно. Саме завдяки йому можна буде продумати оптимальну кількість, розташування та площу кімнат, організувати достатньо систем зберігання, виділити місця для дозвілля, роботи та хобі. У сьогоднішньому матеріалі ми розглянемо основні особливості та види планування приватних будинків та тонкощі створення функціонального простору.
Один з головних плюсів одноповерхового будинку – відсутність сходів. По-перше, продумане планування одноповерхового будинку дозволить раціональніше використовувати площу будинку, адже на облаштування сходів потрібно близько 5-10 квадратних метрів. По-друге, такий вид будівель безпечніший для дітей та людей пенсійного віку. Під одноповерховий будинок можна використовувати практично будь-який тип фундаменту, до того ж немає потреби в облаштуванні міжповерхових перекриттів. З іншого боку, для будівництва одноповерхового будинку потрібна ділянка більшої площі, ніж для зведення двоповерхового будинку.
Двоповерховий будинок не позбавлений своїх переваг. Він дозволяє навіть на невеликій ділянці організувати достатньо місця для комфортного життя, з другого поверху може відкриватися чудовий краєвид. Витрати на зведення фундаменту та даху будуть нижчими, ніж в одноповерхового. З іншого боку, виникає необхідність у зведенні міжповерхових перекриттів, що несе додаткові витрати. До того ж сходи займають чимало корисної площі.
Планування двоповерхових будинків має свої особливості:
Планування будинку на 2 поверхи може передбачати організацію балкона. Хтось уявляє, як щоранку виходитиме на нього і милуватиметься прибудинковою територією. Але багато хто пізніше шкодує про подібне рішення. Балкон використовують не так часто, але прибирати на ньому (особливо восени та взимку) доведеться виконувати регулярно.
Планування приватного будинку залежить не тільки від його поверховості, а й особливостей будівництва. Наявність мансарди, суміжних із сусідами стін, необхідність прилаштувати гараж – все це безпосередньо вплине на фінальне планувальне рішення.
Мансарда – додаткова площа в будинку, яку можна використовувати з користю. Якщо в будинку вистачає житлових приміщень, на ній можна облаштувати майстерню або використовувати як своєрідну комору.
Планування будинку з мансардою базується на тих же принципах, що і для двоповерхової будівлі. Необхідно забезпечити якісну інсоляцію кімнат, для чого чудово підійдуть мансардні вікна. Другий поверх можна використовувати для розміщення кімнат особистого користування – спалень. Для молодої пари без дітей на мансардному поверсі допустимо застосувати відкритий тип планування, відокремивши лише санвузол, а решту простору залишивши без перегородок.
Існує кілька варіантів використання мансарди:
Планування таунхаусів базується на тих же принципах, що і для двоповерхових будинків. Багато хто воліє купувати подібну нерухомість із вільним плануванням – відсутність перегородок дозволить не проводити демонтажні роботи, організувати внутрішній простір під власні потреби.
Будинок з прибудованим до нього гаражем – досить зручне рішення, яке має цілу низку переваг. Споруда виконана в єдиному стилі, виглядає цілісно та гармонійно. З гаража можна організувати вхід безпосередньо до будинку, не доведеться проходити зайві метри по ділянці. При будівництві можна заощадити на матеріалах, адже гараж матиме з будинком загальну стіну та фундамент, перекриття та покрівлю.
Планування будинку з гаражем має враховувати наступні моменти:
Попри те, що ідеальне планування будинку підбирається з урахуванням складу сім’ї та особистих уподобань, є кілька стандартних варіантів, які можна взяти за основу при розробці планувального рішення. Розглянемо кожен із них детальніше.
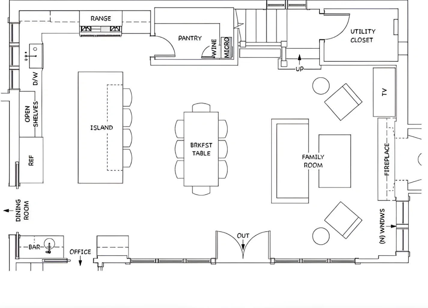
У цьому випадку кімнати об’єднані в єдиний вільний простір, перегородками відокремлені лише санвузли. Повністю вільне планування приватного будинку зустрічається рідко, оскільки воно не забезпечує відокремлених місць для мешканців. Але його можна застосувати для декількох кімнат загального призначення, наприклад, об’єднавши кухню з вітальнею та їдальнею. Для житлових кімнат використовують одну з ізольованих схем.
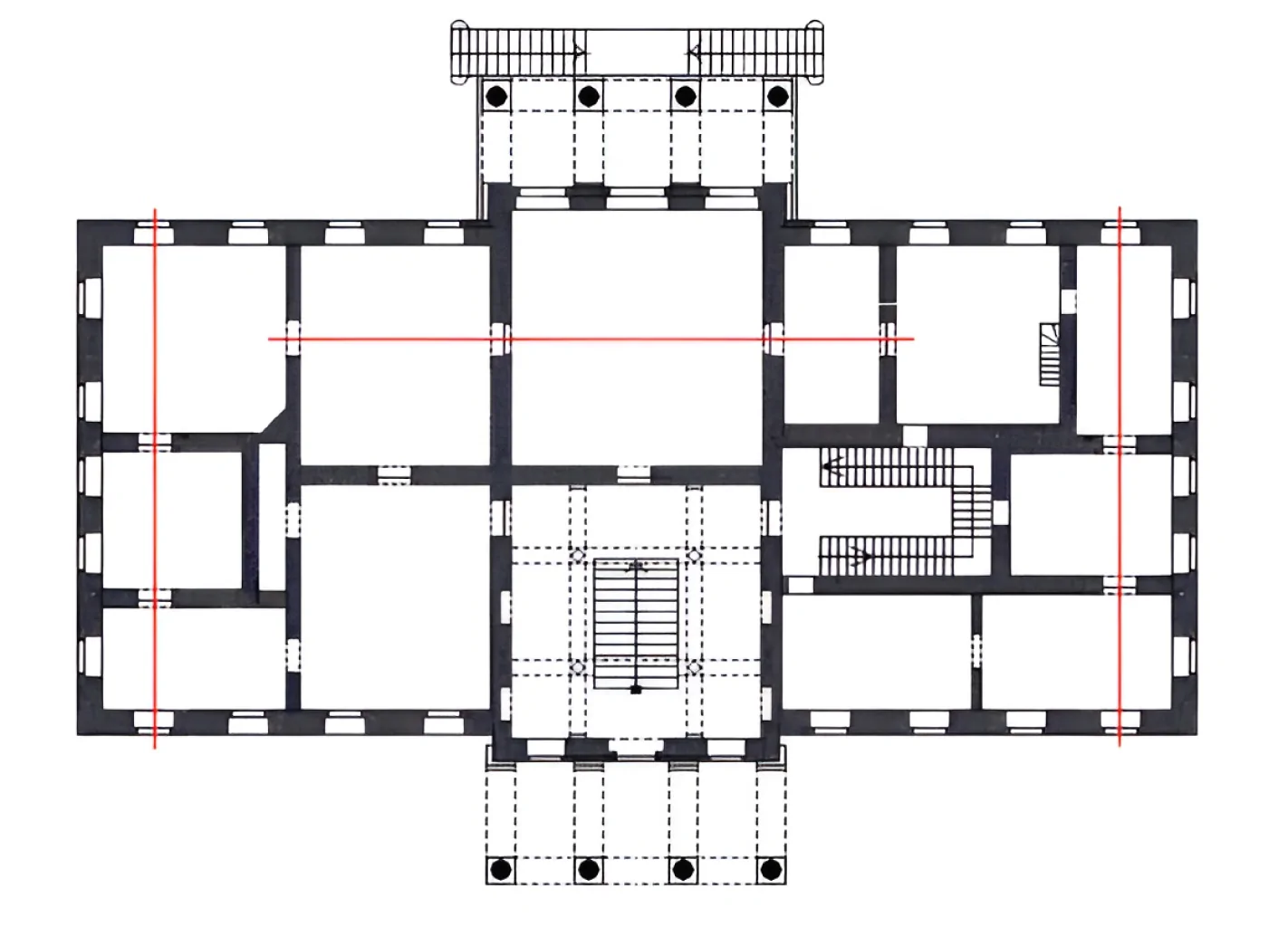
Головна перевага такого варіанта планування – відсутність коридорів, а також можливість обійтися без великої кількості прохідних кімнат. Планування вибудовується навколо однієї заздалегідь обраної точки, роль якої можуть виконувати передпокій, хол зі сходами, кухня-вітальня.
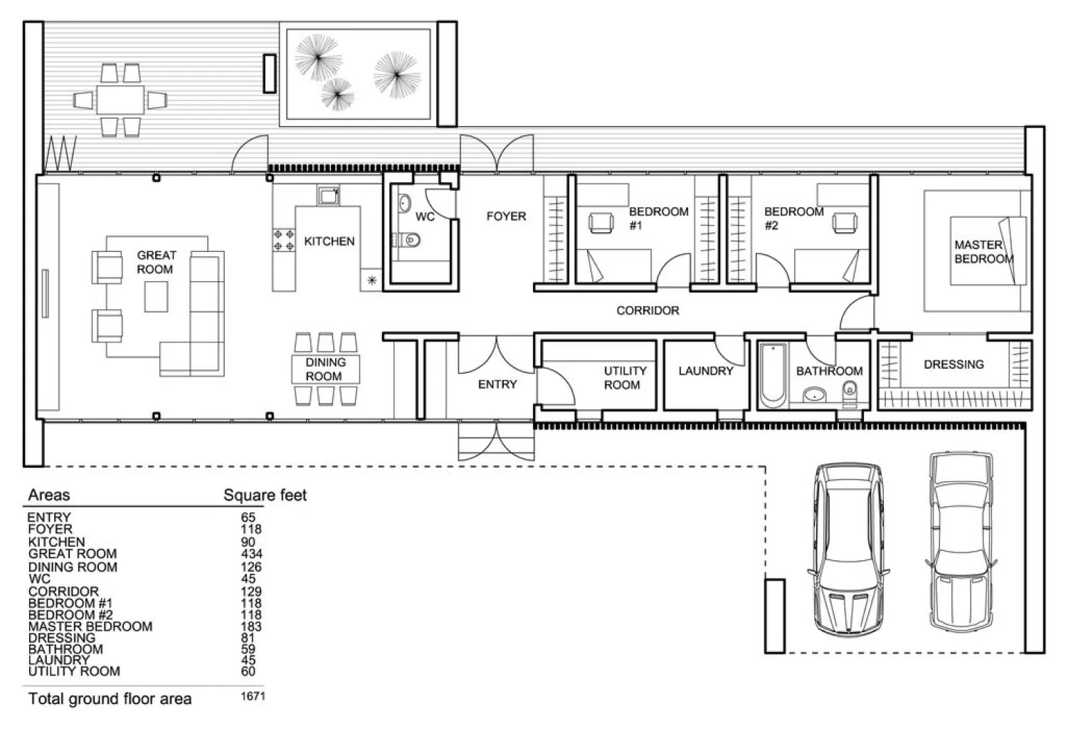
Вона добре відома багатьом власникам квартир. Ця схема будується на розташуванні кімнат по одній або двох сторонах від витягнутого коридору, вона підійде для будівель зі значно витягнутою прямокутною формою. Головний недолік – коридори відбирають корисну площу, причому в них зазвичай не вистачає місця для розміщення меблів. Отже, квадратні метри витрачаються марно.
Такий принцип розподілу простору на кімнати можна побачити у будинках старого типу чи в палацах. Коридори в цьому випадку відсутні, переміщення по будинку відбувається через прохідні кімнати. Головний недолік – через наявність прохідних приміщень складно досягти приватності. Але таку схему можна використовувати для організації майстер-спальні з гардеробом та санвузлом.
Вона поєднує в собі кілька планувальних схем, що дозволяє вигідно використовувати перевагу кожної, позбавившись недоліків. Завдяки змішаній схемі можна отримати оптимальний результат, який відповідає всім побажанням мешканців будинку.
Грамотне планування вілли, таунхаусу чи котеджу завжди охоплює безліч аспектів – як побутових, так і практичних. У будь-якому випадку головною відправною точкою при розробці планувального рішення має стати спосіб життя мешканців. Ґрунтуючись на ньому, підбирають тип та кількість кімнат, наповнення в них. Під час планування необхідно врахувати кілька важливих моментів.
Всі кімнати в будинку можна поділити на дві категорії – господарські та житлові. До перших належать різні нежитлові приміщення: тамбур і передпокій, комори, котельні, пральні та інші.
Тамбур не завжди зустрічається в багатоквартирних будинках, але для приватних будов він – дуже важливий елемент. Головне завдання закритого тамбура – не дати теплу покинути будинок, коли відчиняються вхідні двері. Його краще робити площею від 4 м2 з глибиною не менше 1,2 м. У цьому випадку в тамбурі вистачить місця, щоб у ньому помістилося дві людини, можна було без проблем закрити вуличні двері, а потім відчинити вже внутрішні.
Найкраще, коли площа передпокою дозволяє розмістити в ній шафу, гачки для верхнього одягу, місця для зберігання взуття. Не зайвим буде поверхня, на яку можна скласти продукти, куплені в магазині. Ще краще, якщо забезпечити прямий доступ до кухні та комори – так не доведеться нести продукти через вітальню. Також в безпосередній близькості краще передбачити туалет, гардероб та котельню.
У приватному будинку зазвичай зберігається більше речей, ніж у квартирі. Адже, крім одягу та особистих предметів, необхідно забезпечити місця для інструментів, садового інвентарю, запчастин, які можуть знадобитися при ремонті комунікацій. Не завжди поблизу заміських будинків є велика кількість магазинів, тому мешканці запасаються продуктами у більших обсягах, добре, якщо планування будинку передбачає окрему комору.
Саме у цих приміщеннях мешканці проводять переважну частину часу. Кімнати житлової зони поділяються на дві групи: денного та нічного перебування. До першої категорії належать вітальня, кухня, санвузол, кабінет, спортзал тощо. До другої – спальні та санвузли, що примикають до них, гардеробні.
Найкраще, якщо наповнення особистих кімнат не проглядається з передпокою, щоб приховати його від сторонніх очей. При виборі розташування приміщень слід орієнтуватися на бік світла, яку виходять вікна у яких. У кухні-вітальні ми проводимо найбільше часу вдень, вона має бути максимально наповнена сонячним світлом. Оптимально, якщо вікна виходять на південь, південний схід або південний захід.
З часом потреби сім’ї можуть змінюватися, і буде добре, якщо планування будинку передбачає приміщення, здатне виконувати різні завдання. Яскравий приклад – кабінет, який за наявності в ньому розкладного дивана можна легко перетворити на гостьову кімнату. Або ж гостьова кімната, яка за кілька років перетвориться на дитячу.
Незалежно від площі та поверховості будинку, найкраще, щоб його планування продумали спеціалісти. Вони мають необхідний досвід і навички, знання ергономічних стандартів і будівельних норм. При цьому фахівці нашої студії завжди враховують побажання замовника, склад сім’ї, стиль життя та хобі кожного з мешканців. Це дозволить передбачити необхідну кількість функціональних зон, зробити простір будинку максимально комфортним для кожного.
Розробка планування будинку починається з підготовки обмірного плану, який, своєю чергою, складається після проведення замірів, ретельного вивчення об’єкта, фото- та відеофіксації. Після цього команда архітекторів пропонує кілька варіантів планування. При необхідності один з них доопрацьовується з урахуванням побажань замовника, потім він стає фінальним.
Важливо розуміти, що принцип «чим більше, тим краще» – не надто хороший підхід до планування простору. Планування будинку з великою кількістю порожніх місць не принесе задоволення і не створить умов для комфортного життя. Важливо використовувати площу раціонально та з урахуванням потреб конкретних мешканців. У цьому допоможуть фахівці BORISSTUDIO, підібравши найбільш відповідне планувальне рішення для Вашої нерухомості.