
Taryan Towers – один із найбільш інноваційних ЖК не лише Києва, а й всієї України. Новаторський дизайн трьох веж разом із продуманою інфраструктурою роблять цей комплекс привабливим в очах потенційних покупців нерухомості.
Проєкт Taryan Towers розробив британський архітектор Джон Доуз, надихнувшись архітектурою різних мегаполісів світу – Лондона, Сінгапуру та Дубая. Футуристичний дизайн, що викликає асоціацію з фантастичними космічними кораблями майбутнього, став однією з архітектурних прикрас столиці.
ЖК складається з трьох веж, об’єднаних 4-поверховою стилобатною частиною, а також 2-поверховими скляними мостами у верхній частині будов. Передбачається, що нижня частина мостів огинатиме вежі, пропонуючи мешканцям комплексу ефектну пішохідну зону з прогулянковими та біговими доріжками, з яких відкривається неймовірний краєвид на Печерськ.
Taryan Towers – це не башти-близнюки, адже для кожного будинку передбачено свою індивідуальну концепцію. Так, у першій вежі проєкт передбачає розміщення відкритого панорамного ресторану, в якому гості зможуть не просто скуштувати смачні страви, а й насолодитися видами столиці. Дах другої вежі перетвориться на парк просто неба із зимовим садом та штучним озером. Третю вежу, згідно з проєктом, обладнають кінотеатром, планетарієм та музеєм майбутнього, який чудово впишеться у концепцію ЖК.
Проєкт Taryan Towers передбачає концепцію «двору без автомобілів» – для розміщення авто мешканців комплексу та їх гостей передбачено підземний чотирирівневий паркінг із зарядками для електрокарів та ліфтами, які підіймаються на всі поверхи будинків. Глибина паркінгу дозволяє використовувати його як безпечне укриття під час повітряних тривог.
Розвинена інфраструктура – одна з відмінних рис Taryan Towers. На території комплексу є все, що необхідно мешканцям для покупок та проведення дозвілля. Проєкт ЖК передбачає:
Мешканцям не доведеться думати про те, як діставатися верхніх поверхів в умовах відключення світла. Для таких випадків у ЖК передбачені дизель-генератори, які забезпечать безперебійну роботу швидкісних ліфтів, а також освітлення коридорів, паркінгу та шляхів евакуації.
Територія житлового комплексу знаходиться під цілодобовою охороною, діє відеоспостереження, а також система персональних перепусток та картковий доступ до ліфтів.
Якщо ви плануєте купівлю та ремонт квартири в Taryan Towers, зверніться до BORISSTUDIO – ми розробимо дизайн-проєкт та реалізуємо його під ключ. Врахуємо всі Ваші побажання щодо оформлення, створивши стильний, функціональний та комфортний дизайнерський інтер’єр, що відповідає Вашим смакам та стилю життя, а також преміальному класу ЖК.
Taryan Towers став результатом співпраці інвестиційно-девелоперської компанії TARYAN GROUP і будівельної компанії, що входить до її структури, з більш ніж 25-річною історією «ПОЗНЯКИЖИЛБУД». Забудовник спеціалізується на зведенні житлових комплексів елітного класу, об’єктів соціальної інфраструктури та офісних центрів.
За словами засновника TARYAN GROUP, Артура Мхітаряна, головна місія компанії полягає у тому, щоб задавати тренди та створювати якісно нові стандарти комфортного життя.
Серед реалізованих проєктів компанії – унікальний lifestyle курорт TSARSKY, перший в Україні будинок із садом на даху Royal Tower, а також Jack House з панорамним фітнес-клубом та цілорічним басейном на даху.
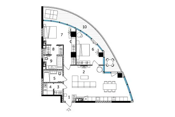
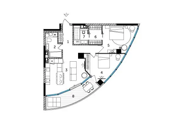
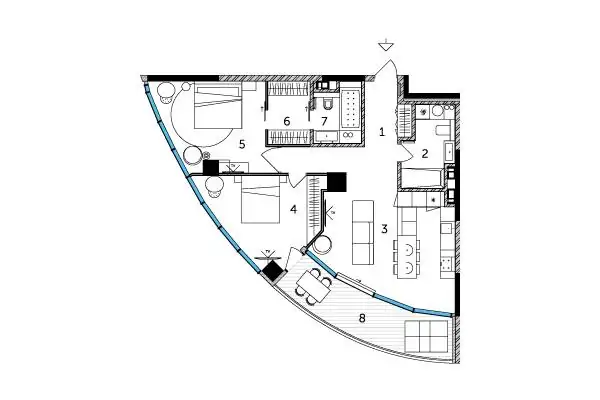
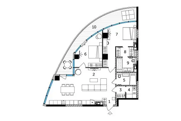
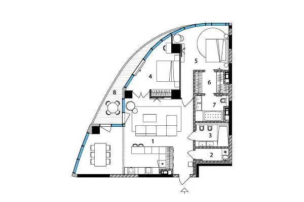
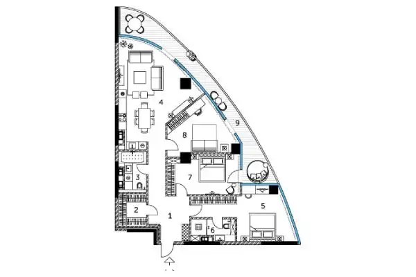
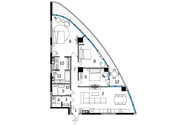
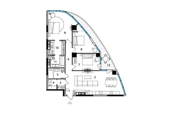
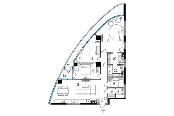
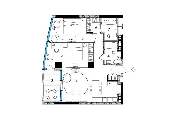
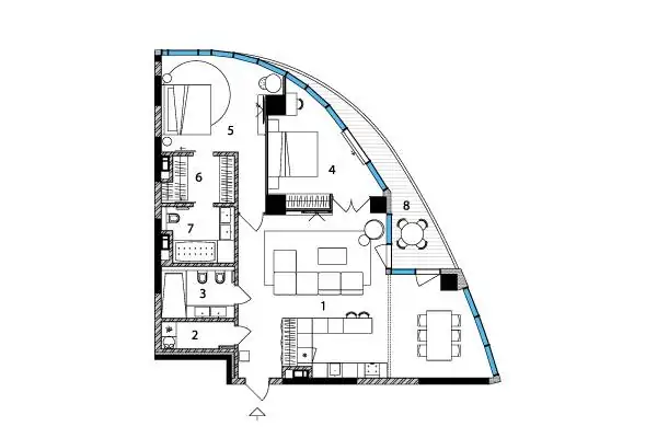
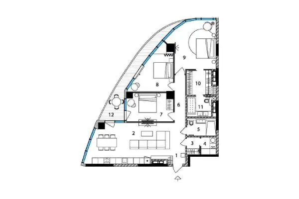
Одна з особливостей ЖК – кожна квартира має свою терасу, з якої мешканці зможуть насолоджуватись мальовничим столичним краєвидом. Забудовник пропонує на вибір одно-, дво-, три- та чотирикімнатні квартири, пентхауси. Площа – від 61 м2 до 129 м2. У Taryan Towers можна придбати квартири з готовим ремонтом або з чорновим оздобленням, щоб максимально адаптувати нерухомість під свої потреби.
У першій та другій вежі комплексу вже мешкають резиденти, активно добудовується третя вежа – завершено моноліт житлових поверхів, проведено скління понад 70% фасаду. Для купівлі квартири в ЖК потрібен мінімальний набір документів – лише оригінал паспорта та ідентифікаційного коду. При 100% оплаті діють спеціальні умови придбання квартир, детальніше про них можна дізнатися безпосередньо у забудовника.
Серед основних переваг житлового комплексу Taryan Towers його мешканці відзначають не тільки футуристичний дизайн, що запам’ятовується, але також і внутрішню інфраструктуру, що розвивається, панорамні вікна і триметрові стелі, наявність терас у квартирах.