
Тільки справжні поціновувачі лазні та сауни точно знають, що отримати задоволення від паріння можна в грамотно спроєктованій парній. У процесі її планування варто врахувати масу нюансів і краще це довірити досвідченим фахівцям BORISSTUDIO.
Відразу уточнимо, що при виборі розміру майбутньої лазні або сауни важливо враховувати 2 фактори – товщину стін та їх утеплення, а також головне правило – двері повинні відчинятися лише назовні.
Тепер розглянемо основні варіанти сучасних планувань саун та лазень:
Планування лазні або сауни може передбачати:
Російська лазня або фінська сауна – неважливо, яка Вам подобається більше, побудувати її з нуля в обох випадках непросто. Кожен такий проєкт включає роботу над системами вентиляції, водопостачання, каналізації, проєктування передбанника, парної та мийної. І часто площа для будівництва будівлі обмежена, тому потрібно точно визначити її оптимальні розміри та максимальну місткість.
Звернення до професійних архітекторів та дизайнерів дасть можливість врахувати всі необхідні технічні параметри для будівництва лазні або сауни, що дозволить дотримуватися в приміщенні необхідного температурного режиму. Це дуже важливо, оскільки недотримання належного рівня температур у різних частинах лазні зробить її не місцем для оздоровлення, а розсадником хвороб.
Попередня розробка дизайн-проєкту дозволить ще й передбачити можливість для розширення сауни, лазні в майбутньому – може, Ви захочете обладнати там гостьову кімнату, спортзал, більярдну або кімнату відпочинку.
Планування – це один із найважливіших елементів у процесі проєктування лазні або сауни. Правильно підібраний проєкт та професійно виконана документація дозволить:
Як вибрати ідеальне планування для Вашої сауни чи лазні? В першу чергу, потрібно визначитися з її типом – вбудованим, прибудованим або відокремленим. Кожен з них має і переваги, і проблемні аспекти, тому тут вибір стоїть виключно за замовником. Проєкти таких лазень або саун відрізнятимуться планувальним рішенням, матеріалом виготовлення, типом та дизайном лазневого обладнання.
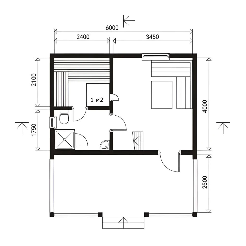
Вибір планування сауни або бані строго індивідуальний, але більшість замовників віддають перевагу стандартним варіантам – зрубу розміром 6х4м або 6х6м. При цьому мають попит зруби компактного розміру – 3,5х3,5м. За загальноприйнятими стандартами, найбільш зручним у плануванні такої будівлі вважається співвідношення парної, мийної та роздягальні 1:1,5:2. Але це не є правило, якого слід суворо дотримуватися.
Щоб баня або сауна нормально функціонувала, у ній обов’язково має бути кілька приміщень, а не одне.
Почнемо з найголовнішого приміщення – парної. Зазвичай вона невелика, її розміри залежать від максимальної кількості людей, які можуть перебувати в ній. Наприклад, розрахунок комфортної площі для 1 людини у будь-якому положенні становить приблизно 1,5 м2. Оптимальною вважається парна, де можуть паритися одночасно 2-3 людей. Висота її стель повинна досягати 2,2-2,4 м, а сама кімната бути невеликою, щоб вона швидше нагрівалася, і Ви могли заощадити на опаленні.
У парній потрібно залишити місце для її головного атрибуту – пічки. Але не менш важливим елементом є полиці. Щоб у майбутньому кожен відвідувач сауни чи лазні міг вибрати оптимальне для себе теплове тло, їх встановлюють уздовж стін на 2-3 різних рівнях. Через те, що під час паріння нагріте повітря підіймається вгору, на верхніх полицях його температура найвища, тоді як на нижніх – помірніша.
Висота кожної полиці зазвичай досягає 30-40 см, довжина – приблизно 2,2 м, а ширина – мінімально 40 см (нижніх полиць) та 90 см (верхніх полиць). На таких полицях у парній буде зручно паритися і сидячи, і лежачи навіть високому чоловікові.
Нижні полиці у парній не застосовують для лазневих процедур – найчастіше це підставка для ніг людини, яка виконує масаж віником. Для більшої зручності їх роблять не стаціонарними, а приставними – після парення зручно прибрати кімнату від листя з віників та залишків води.
Не варто забувати про систему вентиляції – у парній вона повинна працювати бездоганно, щоб запобігти появі грибка та цвілі.
Мийна в лазні або сауні не менш важлива, ніж парна. Перебування в ній посилює ефективність паріння – людина відпочиває та охолоджується, і може перебувати там набагато довше, ніж у парній. Щоб освіжитися після паріння, мийну потрібно обладнати купіллю та душем. Якщо площа приміщення не дозволяє цього зробити, можна обмежитися установкою під стелею відра з водою зі шнурком – смикнувши його на себе, можна обливатися холодною водою і підбадьоритися.
І топ-3 основних приміщень лазні чи сауни замикає кімната відпочинку – без неї комфортне паріння неможливо уявити. Обладнати її варто диванами, кріслами зі столом, а також усім необхідним для відпочинку та прийому їжі. Оформлення кімнати відпочинку може бути в будь-якому стилі, головне, щоб всі матеріали, що використовуються в будівництві та оздобленні, були стійкі до впливу вологи та перепадів температур.
Проєкт сауни або лазні – це лише перший крок на шляху до її будівництва, але найважливіший, і його розробку варто довіряти тільки професіоналам. Архітектори та дизайнери мають достатній досвід у проєктуванні, і знають, як дотримуватися всіх норм безпеки при будівництві та зробити це швидко та з оптимальними фінансовими витратами.
Планування лазні допоможе уникнути типових помилок, серед яких:
Всі ці помилки точно призведуть до перероблювання проєкту та великих фінансових витрат.
Розробка проєкту сауни починається з вибору місця для її будівництва, на основі цієї інформації вже ведеться розрахунок її максимальної місткості. Потім розробляється ТЗ на проєктування лазні або сауни, робляться виміри, підбирається тип та потужність печі, яка її опалюватиме, продумується місце її розташування.
Не менш важливим є питання організації роботи системи вентиляції – це і підведення свіжого повітря, і своєчасне виведення вже відпрацьованого повітря з парної. Від цього залежить, наскільки безпечним та комфортним для відвідувачів буде процес перебування у парній сауни чи лазні.
Проєктуються і кількість полиць для відпочинку в парній, їх розміри та розміщення. При цьому розраховується максимально можлива кількість сидячих та лежачих місць у приміщенні.
Швидкість завершення процесу розробки проєкту лазні залежить від площі об’єкта, місця його розташування та складності запланованих робіт.
Грамотне планування сауни має враховувати кілька важливих моментів:
Розташування лазні на ділянці. У більшості випадків це господарський тип споруди, і згідно з нормами його зведення необхідно, щоб:
Кількість людей – від неї залежатиме загальна площа споруди. Якщо лазня, сауна потрібна на двох, можна обмежитися плануванням 3,5х3,5м. Якщо ж лазневі процедури організовуватиме більша компанія, то й площа будівлі має бути відповідною.
Кількість кімнат та їх функції. Чим лазня компактніша, тим простішим буде її планування. І навпаки – чим вона просторіша, тим різноманітніші варіанти її планування можливі.
Оскільки лазня в більшості випадків розглядається як варіант проведення колективного дозвілля, її планування може передбачати не просто парну та мийну, а цілий комплекс для відпочинку. До нього входять вітальня, тераса, зона для барбекю і навіть житлові кімнати для гостей, що залишилися на ночівлю.
При плануванні лазні важливо враховувати всі нюанси не тільки по розташуванню кімнат, але і її розміщення на обраній ділянці. Її будівництво має відповідати встановленим нормативам будівництва, правилам пожежної безпеки.
Є ряд рекомендацій щодо розміщення даної споруди, які збільшать комфорт її використання:
Таким чином, планування кожної лазні або сауни мінімально містить парну і передбанник. А ось її проєктування по максимуму взагалі не обмежене кількістю кімнат, які можуть бути призначені для гостей.
Заздалегідь розроблений проєкт сауни або лазні гарантує простий та безпроблемний процес її будівництва та оздоблення. Все пройде за планом, без протермінувань та незапланованих витрат на ремонт.
Готовий проєкт попередить появу в майбутньому проблем з безпекою використання та функціональним призначенням лазні. Ви отримаєте не тільки красиву візуально, але й зручну у використанні споруду, яка буде відповідати всім Вашим вимогам та побажанням.
Звернення до професіоналів уможливлює створення індивідуального проєкту планування сауни. Дизайн такої споруди затверджується ще на етапі проєктування, тому в результаті Ви отримаєте проєкт сауни або лазні, який поєднуватиме в собі сучасний зовнішній вигляд і необхідне внутрішнє наповнення.