ПОБАЖАННЯ ЗАМОВНИКІВ
Команда студії розробила дизайн-проєкт квартири для молодої пари — Валерії та Ярослава. Серед побажань замовники зазначили:
- створення простору, не перевантаженого дрібними елементами;
- організацію окремої робочої зони, місць для стаціонарного ПК та ноутбука;
- система зберігання на одному із балконів;
- достатньо місця у вітальні, щоб грати у настільні ігри;
- переважання світлих природних відтінків в оформленні, які можна розбавити кількома акцентними;
- відсутність поріжків;
- часткова шумоізоляція.
РІШЕННЯ ВІД КОМАНДИ BORISSTUDIO
Виходячи з побажань замовників, при розробці дизайн-проєкту командою студії було запропоновано такі рішення:
- У всіх приміщеннях, за винятком балконів та ванної кімнати, використовувати єдине підлогове покриття без поріжків.
- Організувати зручне місце для роботи за ноутбуком на одному з балконів, додатково передбачити робоче місце з ПК у вітальні.
- Як елемент декору та інструмент для візуального зонування простору використовувати стінові панелі.
- Виконати шумоізоляцію частини стін: у вітальні, на кухні та балконах.
- На балконах організувати теплу підлогу.
ПЕРЕДПОКІЙ
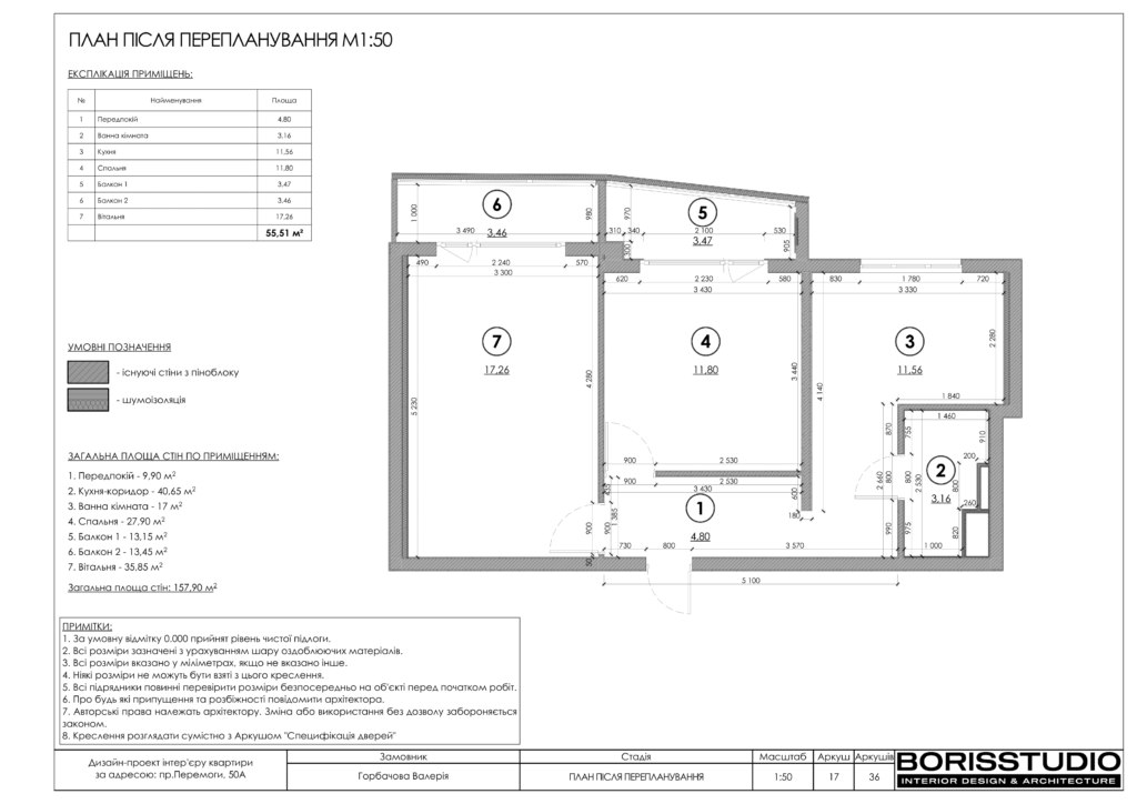
Передпокій (4,80 м2) у проєкті вийшов лаконічним і при цьому максимально функціональним. У ньому ми передбачили містку шафу із закритими фасадами, кілька гачків для верхнього одягу та пару полиць для взуття. Також тут розміститься вбудована банкетка, на яку зручно сісти у процесі зборів.
СПАЛЬНЯ
Для замовників було важливо, щоб спальня стала виключно місцем для комфортного відпочинку. Команда студії врахувала цей момент, розташувавши на площі 11,80 м2 лише необхідний набір меблів: ліжко, пару тумб і шафу.
Головним візуальним акцентом спальні стала стіна в узголів’ї ліжка, оформлена за допомогою гіпсових 3D-панелей — вона привертає увагу і гармонійно вписується в мінімалістичну стилістику інтер’єру. Крім розеток поруч зі спальним місцем передбачили прохідні вимикачі. Це зручне рішення, яке дозволить вимикати верхнє світло у кімнаті, не встаючи з ліжка.
БАЛКОН 1
Балкон площею 3,47 м2 вийшов світлим та функціональним, на ньому ми передбачили місце для роботи з ноутбуком та шафу. Для оформлення вікон було запропоновано використовувати темні жалюзі — вони не тільки добре захистять від яскравого сонця, але й виконуватимуть роль контрастного до світлого оздоблення елемента.
ВІТАЛЬНЯ
Попри лаконічність оформлення, вітальня, площа якої становить 17,26 м2, виглядає затишною. Такого ефекту вдалося досягти за допомогою світлих природних відтінків, текстури дерева, кімнатної рослини. Простір кімнати ми поділили на кілька функціональних зон: для відпочинку, вільне місце для настільних ігор та робочу зону. Перша представлена зручним кутовим диваном «Окленд Кут» від українського виробника Frankof, невисоким журнальним столиком, виготовленим з масиву ясена, телевізором та TV-консоллю.
Робоча зона вийшла досить місткою для розміщення стаціонарного комп’ютера та відкритих полиць. У ній передбачено використання меблів індивідуального виготовлення з використанням Egger Дуб Орлеанський пісочно-бежевий та Egger Білий базовий.
БАЛКОН 2
Цей балкон (3,46 м2) виконує роль виключно зони відпочинку. На ньому було запропоновано розташувати пару стільців на алюмінієвому каркасі зі спинкою та сидінням, виготовленим із текстильного шнура та доповненим м’якими подушками. Гармонійно зі стільцями поєднується приставний кавовий столик.
ВАННА КІМНАТА
Площу в 3,16 м2 ванної кімнати вдалося використати з максимальною користю та оснастити її всім необхідним: душовим куточком, підвісним унітазом та гігієнічним душем, стільницею з накладною раковиною, під якою передбачено місце для пральної машини, електричною рушникосушаркою. За закритими фасадами сховається бойлер.
Переважання натуральних текстур (дерева та каменю) робить інтер’єр дуже затишним. Не останню роль у ньому відіграє різнорівневе освітлення – крім верхнього світла ми передбачили декоративне підсвічування дзеркала та поличок у зоні душу.
КУХНЯ
На кухні площею 11,56 м2 проєкт передбачає встановлення кутового гарнітуру з шафами до стелі. Гладкі лаконічні фасади без видимих ручок виглядають стильно та мінімалістично, візуально не перевантажують простір. Завдяки наявності посудомийної машини замовники нечасто користуються мийкою і були не проти того, щоб розмістити її в кутку. Обідня зона представлена компактним столом зі стільницею з масиву дуба та кількома стільцями, які за кольором перегукуються з нижнім рядом кухонного гарнітура.
ПАЛІТРА КОЛЬОРІВ
При підборі палітри кольорів команда студії врахувала те, що замовникам подобаються світлі природні відтінки. Основним кольором у цьому проєкті став Granit 55 L84 C0 H0 із каталогу Caparol 3D-System Plus — з ним простір виглядає світло та затишно. Як акцентний був обраний зелений колір. Він представлений на фасадах нижнього ряду кухонного гарнітура (Olive green, RAL 6003), а також стільцями в обідній зоні та на балконі, виконаними в природних відтінках зеленого.
ОЗДОБЛЮВАЛЬНІ МАТЕРІАЛИ
- Стеля. У всіх приміщеннях для оздоблення була вибрана натяжна матова стеля, яка виглядає максимально нейтрально і не перетягує на себе увагу. Уздовж частини стін у вітальні, спальні, передпокої, ванній кімнаті та на кухні передбачили тіньовий профіль для монтажу світлодіодної стрічки.
- Стіни. У всіх приміщеннях, крім ванної кімнати, стіни оздоблені декоративною штукатуркою. Вона виглядає стильно, до того ж використання єдиного покриття робить інтер’єр гармонійним та цілісним. Для створення акцентів та візуального зонування простору у вітальні та спальні додатково використовували стінові панелі — гладкі з текстурою дерева та рельєфні гіпсові. У ванній кімнаті від штукатурки було вирішено відмовитись на користь керамогранітної плитки двох видів. Для частини стін ми запропонували використовувати керамограніт GRES CONCRETE GRIS RECT, а для зони біля дзеркала та душу ALMERA CERAMICA-2 TERRAZZO FCT611S COLORS. Кухонний фартух запропоновано облицювати плиткою ALMERA CERAMICA P.E. CEPPO DI GRE LIGHT GREY MT RECT.
- Підлога. Як і у випадку зі стінами, для оздоблення підлоги вибрали єдине покриття, у більшості приміщень ним став вініл Berry Alloc Spirit Pro 55. Винятком знову стала лише ванна кімната. У ній використали ту ж керамогранітну плитку, що й для оздоблення стін. Замість стандартних підлогових плінтусів передбачається використовувати алюмінієвий профіль тіньового шва.
ОСВІТЛЕННЯ
Щоб реалізувати побажання замовників щодо максимально світлого простору, проєкт передбачає велику кількість джерел світла. За верхнє світло у квартирі відповідають 30 точкових світильників MAYTONI 17519. На додаток до них використали світлодіодне декоративне підсвічування та пару білих бра NB LIGHT 27303 для спальні.
СИСТЕМИ ЗБЕРІГАННЯ
Майже у кожному приміщенні квартири розташувалися різноманітні системи зберігання. Крім шаф для одягу передбачено кілька полиць, на яких замовники зможуть зберігати свою колекцію настільних ігор. Завдяки лаконічному дизайну систем зберігання вони гармонійно вписуються в інтер’єр, візуально не перевантажують його і не привертають до себе надмірної уваги.







