ПОБАЖАННЯ ЗАМОВНИЦІ
Серед основних побажань щодо оформлення наша замовниця Тамара вказала наступні:
- пастельні відтінки, відсутність чорного;
- наявність гардеробної та робочого місця;
- максимум світла;
- велика кількість систем зберігання;
- перетворення тераси на житлову кімнату;
- місце для ігрового комплексу для кішки.
РІШЕННЯ ВІД КОМАНДИ BORISSTUDIO
Командою студії було запропоновано:
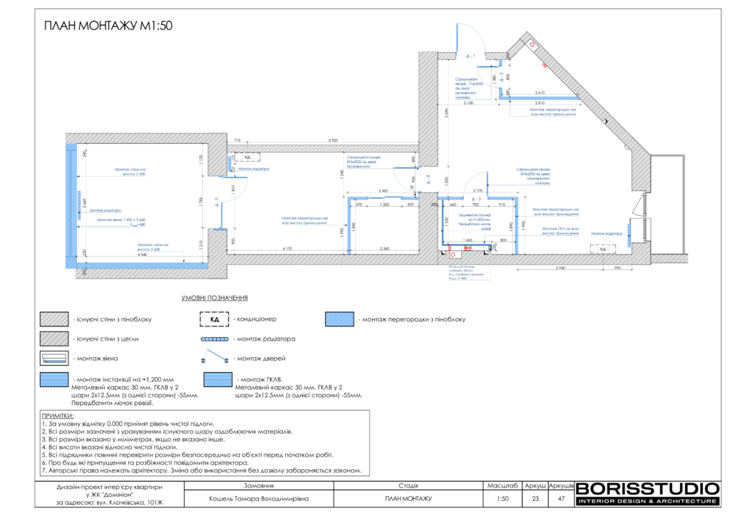
- Квартиру з вільним плануванням за допомогою перегородок розділити на кілька функціональних зон: передпокій, пральню, простору кухню-вітальню, ванну кімнату, спальню та гардероб.
- Утеплити терасу, демонтувати балконний блок та встановити замість нього двері з панорамним склінням, які зможуть забезпечити достатню кількість природного світла у спальні. Простір тераси організувати під робочий кабінет.
- Монтувати теплу підлогу в зоні кухні, у ванній кімнаті та в кабінеті.
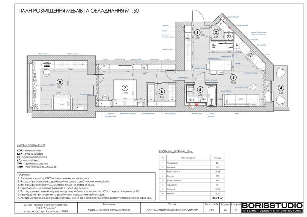
ПЕРЕДПОКІЙ
Завдяки світлим відтінкам та продуманому освітленню передпокій площею 2,84 м2 не здається тьмяним та незатишним. У ньому праворуч від входу до квартири ми передбачили дзеркало, тумбу та банкетку з поличками для взуття. На кордоні між передпокоєм та кухнею-вітальнею вздовж стіни передбачається встановити шафу для одягу з кількома відкритими полицями та відсіком, у якому можна зберігати робот-пилосос.
ПРАЛЬНЯ
Завдяки переплануванню нашій команді вдалося виділити місце під окрему пральню площею 2,33 м2. У ній кожен сантиметр простору використали з користю. Пральня вийшла функціональною, в невеликому приміщенні вдалося розмістити шафу з пральною машиною та бойлером, стільницю, тумбу та полиці для зберігання, рушникосушарку. Також передбачене місце під кошик для білизни.
КУХНЯ-ВІТАЛЬНЯ
Кухня-вітальня, площа якої склала 29,85 м2, розділена на три функціональні зони: для приготування їжі, обідню та зону відпочинку. Перша представлена кутовим гарнітуром з холодильником, вбудованою посудомийною машиною, варильною поверхнею та духовкою.
В обідній зоні замість класичного столу було запропоновано встановити кухонний острів та кілька барних стільців. Дизайн острова, а саме поєднання гладких та фрезерованих фасадів з текстурою дерева, перегукується з оформленням гарнітура, завдяки чому інтер’єр виглядає цілісно та гармонійно.
Зона відпочинку представлена зручним диваном, компактним журнальним столиком та лежанкою для кішки. Для візуального зонування використовували декоративну стінову панель з рельєфною поверхнею.
СПАЛЬНЯ
Інтер’єр спальні (18,58 м2) вийшов затишним та не перевантаженим зайвими деталями. Крім ліжка з м’яким узголів’ям в ній ми передбачили шафу, кілька відкритих полиць, тумбу, комод і тумбу-консоль, а також дамський столик з дзеркалом.
У гардеробі вдалося організувати достатню кількість систем зберігання: відсіки з рейлінгами, відкриті полиці, висувні ящики. Замість стандартного дзеркала було запропоновано використовувати дзеркальні фасади на розсувній перегородці.
КАБІНЕТ
Перше, на що звертаєш увагу на візуалізації кабінету, — альков, у якому розташувалася затишна зона відпочинку. Поблизу неї організовано робоче місце зі столом і зручним кріслом, навпроти від нього — компактний диван. Також у кабінеті, площа якого 18,11 м2, розташувалася шафа для одягу з комбінованими фасадами — гладкими та рельєфними. З урахуванням побажань замовниці ми додатково передбачили місце для котячого ігрового комплексу.
ВАННА КІМНАТА
Попри невелику площу в 3,84 м2, ванна кімната вийшла функціональною – крім повноцінної ванни довжиною 170 см в ній розмістився підвісний унітаз, тумба з раковиною, кілька компактних полиць, дзеркало і сушка для рушників. Також передбачили підлогову шафу, в якій розміститься лоток для кішки. А світле оздоблення, кілька видів підсвічування та текстура дерева допомагають зробити інтер’єр більш затишним.
ПАЛІТРА КОЛЬОРІВ
Колірну палітру дизайнери студії підібрали з урахуванням побажань замовниці, до того ж світлі відтінки дозволили компенсувати нестачу природного світла у квартирі. Як основний колір було запропоновано використовувати GINSTER 30 (L92 C1 H85), як альтернативу CAMEO 30 (L93 C1 H40) або APRICO 30 (L92 C1 H50) з палітри Caparol 3D-System Plus. Для спальні, гардеробу та кабінету був обраний колір AVA Weiß.
Щоб розставити візуальні акценти та зробити інтер’єр ще цікавішим, використовували декоративні панелі кольору U7081 ST76 (світло-сірий суцільний), U363 ST9 (фламінго рожевий), а також RAL 3015 (світло-рожевий).
ОЗДОБЛЮВАЛЬНІ МАТЕРІАЛИ
- Стеля. У квартирі було запропоновано використати білі матові натяжні стелі. Також проєкт передбачає організацію прихованих карнизних профілів з підсвічуванням, тіньових профілів для монтажу світлодіодної стрічки.
- Стіни. Для оздоблення стін у проєкті запропоновано використовувати безфактурний флізелін, фарбу, гладкі та декоративні фрезеровані панелі ДСП Egger. Поєднання матеріалів з різною фактурою дозволяє зробити інтер’єр ще більш привабливим, до того ж служить для візуального зонування простору, розміщення акцентів. Для ванної кімнати підібрали плитку Dual Gres SWEET WHITE.
- Підлога. Для частини кухні-вітальні, спальні, кабінету та гардеробу було запропоновано використовувати кварцвініл Berry Alloc Spirit Home 40 60001409 Grace Natural. Для зони кухні, ванної кімнати та пральні вибрали керамограніт MAINZU VERSAILLES WOOD.
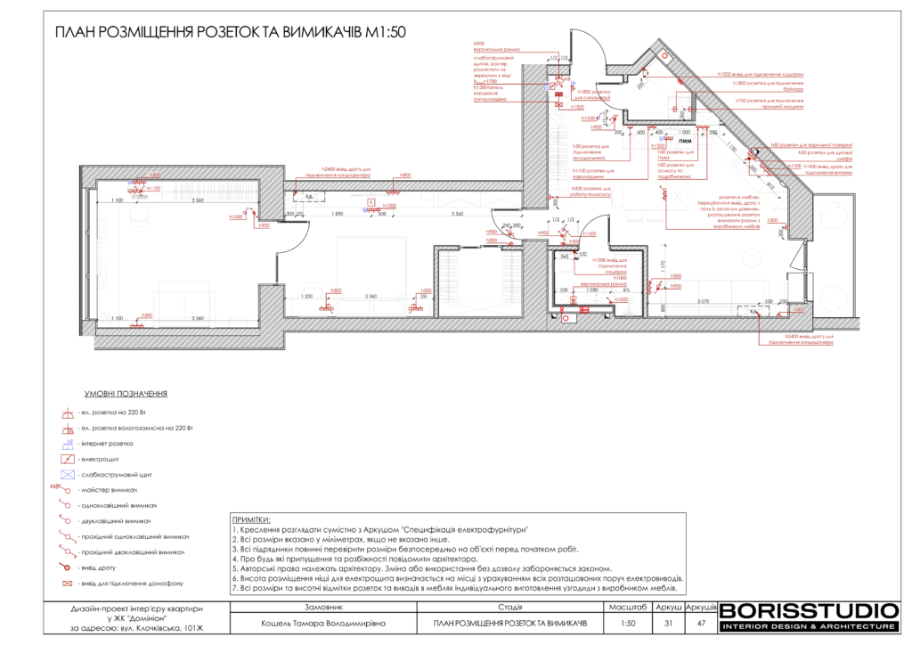
ОСВІТЛЕННЯ
Важко переоцінити значення якісного освітлення у сприйнятті інтер’єру. Достатня кількість освітлювальних приладів та їхнє грамотне розташування дозволить зробити простір світлішим і просторішим, розставити візуальні акценти, вони можуть служити як інструмент для зонування простору.
- Загальне світло. За нього в кімнатах відповідають світлодіодна стрічка, точкові споти (білі та біло/золоті) та круглі точкові світильники в спальні, гардеробі та кабінеті. У спальні й кабінеті додатково передбачені магнітні трекові світильники на шинопроводі.
- Локальне підсвічування. Представлене люстрою та торшером у зоні відпочинку кухні-вітальні, парою світильників на підвісах над кухонним островом, спотами в узголів’ї ліжка, настільною лампою в кабінеті.
СИСТЕМИ ЗБЕРІГАННЯ
Враховуючи побажання замовниці про велику кількість систем зберігання, проєкт передбачає розміщення шаф практично в кожній кімнаті: на кордоні між передпокоєм та кухнею-вітальнею, у пральні, спальні та кабінеті. Також організували окремий гардероб. У цьому проєкті шафи виконують не лише свою безпосередню функцію. Їхні лаконічні фасади з фрезерованими вставками виглядають стильно, роблять простір більш об’ємним та відіграють роль своєрідного декору.
























