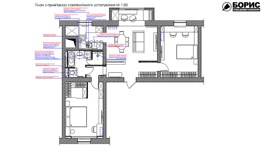
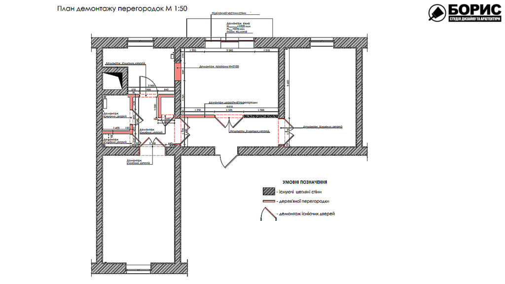
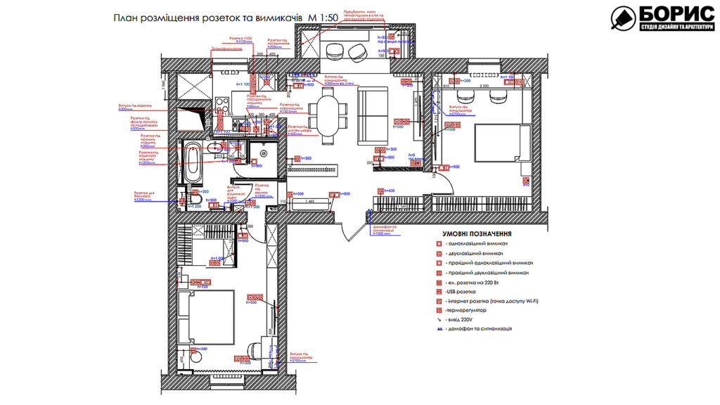
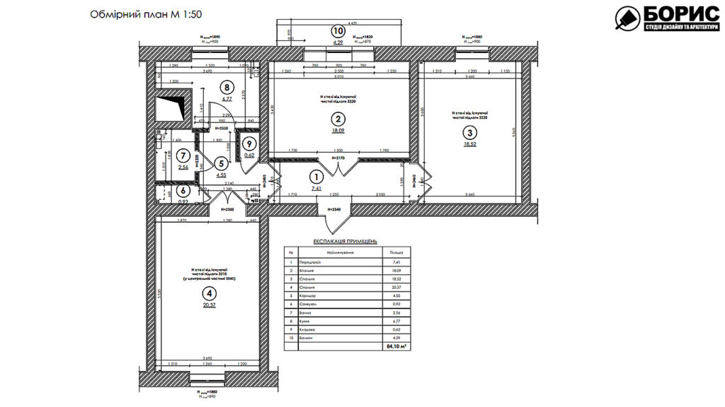
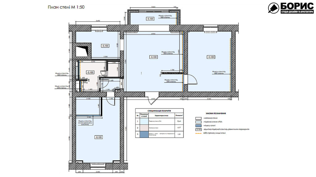
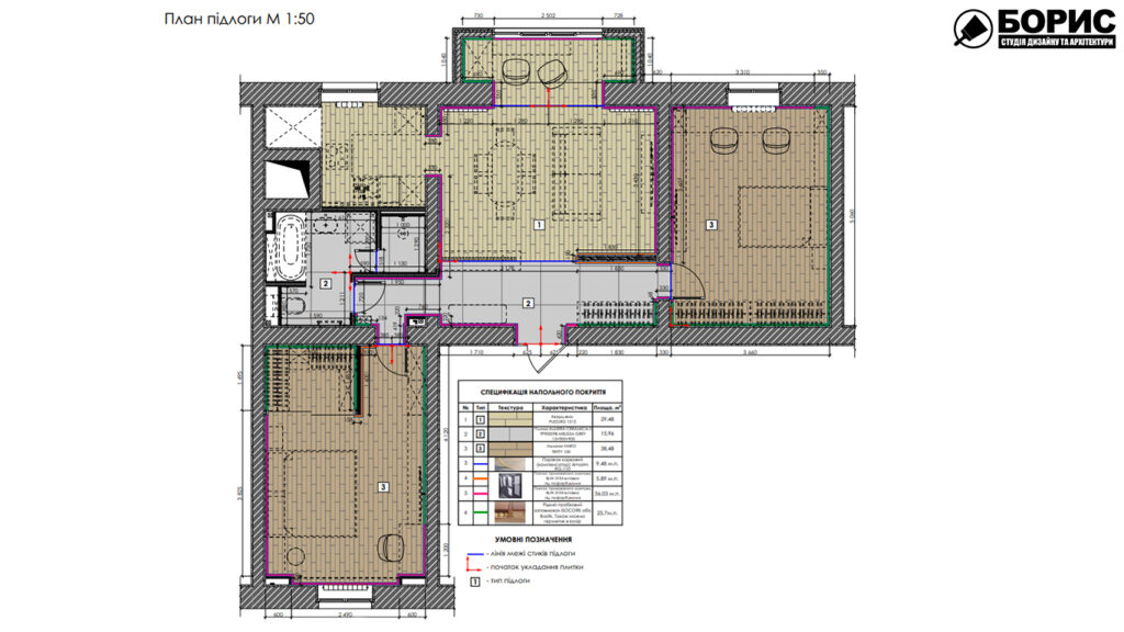
Дизайн интерьера трехкомнатной квартиры по ул. Семинарской

О проекте
г. Харьков
Площадь: 84 м²
ул. Семинарская, 57б
2021 год
Дизайн интерьера трехкомнатной квартиры по ул. Семинарской
5.0

Другие наши работы

Ремонт квартиры в Харькове в ЖК Журавли
Ремонт квартиры в Харькове в ЖК Журавли

79,45 м²

г. Харьков, ул. Академика Павлова, 158

Ремонт квартиры в Харькове в ЖК Дом на Сумской
Ремонт квартиры в Харькове в ЖК Дом на Сумской

105 м²

г. Харьков, ул. Сумская, 77

Дизайн и ремонт под ключ трехкомнатной квартиры в ЖК «Левада-2»
Дизайн и ремонт под ключ трехкомнатной квартиры в ЖК «Левада-2»

72,9 м²

г. Харьков, ул. Заливная, 4